Ce lot n’est plus disponible chez VIANOVA ou est vendu.

Vous pouvez revenir dans 24h pour vérifier le stock à jour ou contacter un conseiller Vianova pour vérifier le stock en direct.
Vous pouvez également continuer votre recherche sur notre site « ici ».

32 220€
418 860€
- €
Type
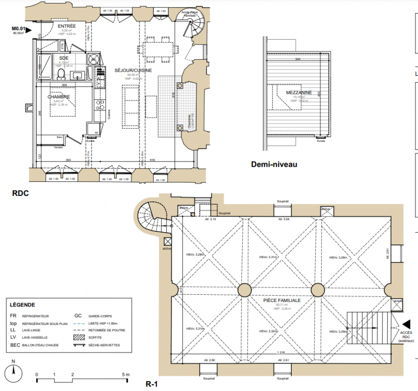
Appt. au 0-RDC
Pièces
T2
Surface
80.55 m²
Exposition
-
Ville
Gonfreville-l'Orcher (76700)
Livraison
4ème trimestre 2027
Informations
01 81 80 39 10

Présentation du programme "Le Manoir de Bévilliers - LE HAVRE"

GONFREVILLE L'ORCHER
Commune limitrophe du Havre, Gonfreville-l'Orcher est, jusqu'à la fin du XIXe siècle, un petit village doté d'usines importantes telles que la fonderie Bassot et la Corderie du Commerce, dans le hameau de Gournay-en- Caux. Aujourd'hui intégrée à Havre Seine Métropole, la ville bénéficie de la dynamique urbaine du Havre et conserve un environnement verdoyant recherché.

LE MANOIR DE BEVILLIERS, une architecture renaissance du XVIe siècle

Construit en même temps que la ville royale du Havre, le manoir de Bévillers est un très beau témoignage de l'architecture renaissance en Normandie.
Le Manoir est un lieu à vocation réceptive niché au cœur d'un parcours de golf.
Très peu modifié, il conserve encore aujourd'hui tous les codes du manoir renaissance : grandes baies en pierre à meneaux, de magnifiques cheminées sculptées, de beaux ornements…
Plusieurs de ses fenêtres comportent même des parties d'origine (elles ont donc près de 500 ans).

A PROXIMITE
Le manoir est situé à l'entrée du Havre et offre une facilité d'accès à la plus grande ville de Normandie et le premier port français pour l'approvisionnement énergétique, pour les vins et spiritueux et pour l'import export de véhicules neufs. L'économie du Havre repose depuis longtemps sur sa tradition ouvrière et maritime.
La ville a su se développer grâce à une politique urbaine dynamique et un maire très impliqué.

LA RENAISSANCE DU MANOIR
Situé à l'entrée du Havre, au cœur d'un terrain de golf 9 trous, le Manoir de Bévilliers, sera aménagé en 13 logements répartis sur 3 étages :
- RDC : 4 logements (1 studio, 2 deux pièces et 1 trois pièces)
- 1er étage : 4 logements ( 2 studios, 1 deux pièces et 1 trois pièces)
- 2ème étage : 5 logements (1 studio et 4 deux pièces)
- 3ème étage : 13 celliers

Le projet prévoit la restauration des parties communes, le traitement des intérieurs, les réseaux VRD et le traitement des façades et de la toiture.

L'ensemble immobilier permettra de redonner vie au Manoir et accueillera ses futurs résidants dans un écrin de verdure avec un beau parc paysager.

Visualisez la vidéo : Ici

Travaux éligibles :
Monuments Historiques et déficit foncier

Autres logements T2 du programme "Le Manoir de Bévilliers - LE HAVRE"

Disponibilité Prix Genre Pièces Surface Étage
Voir
Disponible
329 875€ Appt. T2 48.52m2 1er
Voir
Disponible
309 986€ Appt. T2 45.34m2 0-RDC
Voir
Optionné
435 167€ Appt. T2 65.41m2 0-RDC
DO NOT CLICK