Prix
298 000€
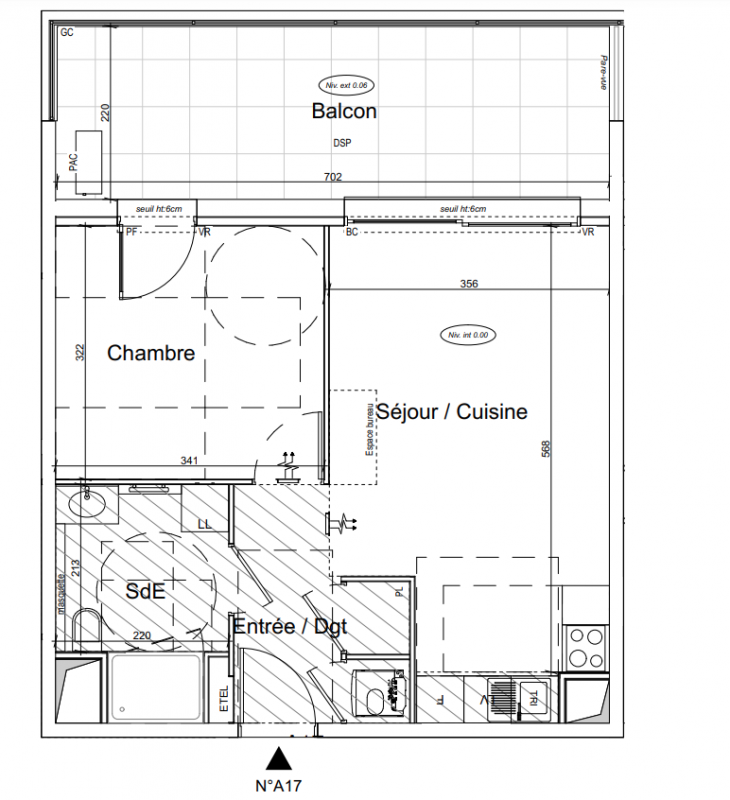
Type
Appt. au 1er
Pièces
T2
Surface
42.7 m²
Exposition
Sud
Ville
Toulon (83000)
Livraison
2ème trimestre 2027
Informations
01 81 80 39 10

Présentation du programme "DOMAINE EDEN DU CAP"

Le quartier Cap Brun, surplombant la Méditerranée et les collines varoises,  accueille un nouveau Domaine Privé signé Vianova.

Autres logements T2 du programme "DOMAINE EDEN DU CAP"

Pas de logements disponibles
DO NOT CLICK