291 560€ (TVA 20%)
256 330€ (TVA 5.5%)
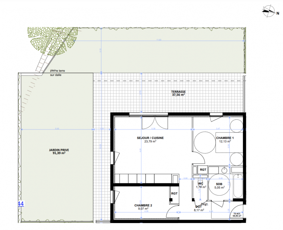
Appt. au 0-RDC
T3
59.94 m²
-
Marseille 13ème (13013)
3ème trimestre 2028
01 81 80 39 10
Présentation du programme "Latitude 13 - Augustin Merlhou"
Devenez propriétaires de votre appartement neuf à deux pas des commodités - Marseille 13e - Allée Augustin Merlhou.
Découvrez en avant-première le programme Latitude 13 dans le quartier prisé de La Rose, situé au coeur du 13ème arrondissement de Marseille. Cette résidence de 150 appartements neufs, du studio au 5 pièces garantit un confort idéal et des économies d'énergie, grâce à sa conformité aux normes RE 2020.
La résidence se compose de 3 immeubles modernes et sécurisés, proposant 150 appartements neuf, du Studio au 5 Pièces - Éligibles TVA 5,5 %.
Les atouts du programme :
✅ TVA réduite à 5,5 % (sous conditions d'éligibilité)
✅ Prestations de qualité : logements lumineux, belles surfaces extérieures, matériaux durables
✅ Confort et praticité : local à vélos en sous-sol, parking extérieur sécurisé
✅ Espaces de vie partagés : un city stade en pied d'immeuble pour petits et grands
✅ Accessibilité optimale : à deux pas du métro Ligne 1 - La Rose, 12 lignes de bus à proximité
✅ Vie de quartier dynamique : commerces, écoles, services et équipements publics accessibles à pied
Que vous soyez primo-accédant ou à la recherche de votre résidence principale, ce programme vous offre un cadre de vie équilibré entre tranquillité résidentielle, mobilité urbaine et proximité des commodités.
Adresse : Allée Augustin Merlhou - 13013 Marseille
Autres logements T3 du programme "Latitude 13 - Augustin Merlhou"
| Disponibilité | Prix | No | Genre | Pièces | Surface | Étage | Disponibilité | Prix | ||
|---|---|---|---|---|---|---|---|---|---|---|
| Voir | Disponible | 288 114€ | D 303 | Appt. | T3 | 59.94m2 | 3ème | Disponible | 288 114€ | Voir |
| Voir | Optionné | 265 137€ | D 403 | Appt. | T3 | 59.94m2 | 4ème | Optionné Mais pas encore vendu 😉 | 265 137€ | Voir |
| Voir | Disponible | 278 855€ | D 603 | Appt. | T3 | 59.94m2 | 6ème | Disponible | 278 855€ | Voir |
| Voir | Disponible | 291 560€ | D 301 | Appt. | T3 | 64.57m2 | 3ème | Disponible | 291 560€ | Voir |
| Voir | Disponible | 278 923€ | D 401 | Appt. | T3 | 65.78m2 | 4ème | Disponible | 278 923€ | Voir |
| Voir | Disponible | 298 385€ | E 803 | Appt. | T3 | 62.61m2 | 8ème | Disponible | 298 385€ | Voir |
| Voir | Disponible | 282 876€ | D 702 | Appt. | T3 | 58.86m2 | 7ème | Disponible | 282 876€ | Voir |
| Voir | Disponible | 286 897€ | D 802 | Appt. | T3 | 58.86m2 | 8ème | Disponible | 286 897€ | Voir |
| Voir | Disponible | 269 733€ | E 404 | Appt. | T3 | 59.94m2 | 4ème | Disponible | 269 733€ | Voir |
| Voir | Disponible | 281 221€ | E 602 | Appt. | T3 | 59.94m2 | 6ème | Disponible | 281 221€ | Voir |
| Voir | Disponible | 277 774€ | E 604 | Appt. | T3 | 59.94m2 | 6ème | Disponible | 277 774€ | Voir |
| Voir | Optionné | 285 242€ | E 702 | Appt. | T3 | 59.94m2 | 7ème | Optionné Mais pas encore vendu 😉 | 285 242€ | Voir |
| Voir | Disponible | 281 795€ | E 704 | Appt. | T3 | 59.94m2 | 7ème | Disponible | 281 795€ | Voir |
| Voir | Disponible | 288 114€ | E 304 | Appt. | T3 | 59.94m2 | 3ème | Disponible | 288 114€ | Voir |
| Voir | Disponible | 273 179€ | E 402 | Appt. | T3 | 59.94m2 | 4ème | Disponible | 273 179€ | Voir |
| Voir | Disponible | 297 236€ | C 601 | Appt. | T3 | 65.78m2 | 6ème | Disponible | 297 236€ | Voir |
| Voir | Disponible | 297 236€ | C 603 | Appt. | T3 | 65.78m2 | 6ème | Disponible | 297 236€ | Voir |