197 437€ (TVA 20%)
173 580€ (TVA 5.5%)
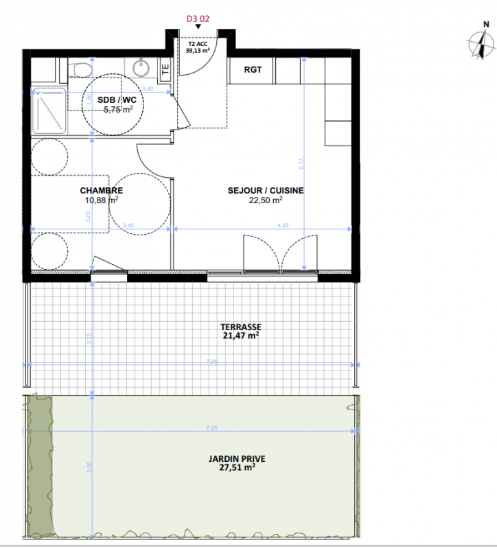
Appt. au 3ème
T2
39.13 m²
-
Marseille 13ème (13013)
3ème trimestre 2028
01 81 80 39 10
Présentation du programme "Latitude 13 - Augustin Merlhou"
Devenez propriétaires de votre appartement neuf à deux pas des commodités - Marseille 13e - Allée Augustin Merlhou.
Découvrez en avant-première le programme Latitude 13 dans le quartier prisé de La Rose, situé au coeur du 13ème arrondissement de Marseille. Cette résidence de 150 appartements neufs, du studio au 5 pièces garantit un confort idéal et des économies d'énergie, grâce à sa conformité aux normes RE 2020.
La résidence se compose de 3 immeubles modernes et sécurisés, proposant 150 appartements neuf, du Studio au 5 Pièces - Éligibles TVA 5,5 %.
Les atouts du programme :
✅ TVA réduite à 5,5 % (sous conditions d'éligibilité)
✅ Prestations de qualité : logements lumineux, belles surfaces extérieures, matériaux durables
✅ Confort et praticité : local à vélos en sous-sol, parking extérieur sécurisé
✅ Espaces de vie partagés : un city stade en pied d'immeuble pour petits et grands
✅ Accessibilité optimale : à deux pas du métro Ligne 1 - La Rose, 12 lignes de bus à proximité
✅ Vie de quartier dynamique : commerces, écoles, services et équipements publics accessibles à pied
Que vous soyez primo-accédant ou à la recherche de votre résidence principale, ce programme vous offre un cadre de vie équilibré entre tranquillité résidentielle, mobilité urbaine et proximité des commodités.
Adresse : Allée Augustin Merlhou - 13013 Marseille
Autres logements T2 du programme "Latitude 13 - Augustin Merlhou"
| Disponibilité | Prix | No | Genre | Pièces | Surface | Étage | Disponibilité | Prix | ||
|---|---|---|---|---|---|---|---|---|---|---|
| Voir | Disponible | 204 330€ | E 603 | Appt. | T2 | 39.13m2 | 6ème | Disponible | 204 330€ | Voir |
| Voir | Optionné | 207 202€ | E 703 | Appt. | T2 | 39.13m2 | 7ème | Optionné Mais pas encore vendu 😉 | 207 202€ | Voir |
| Voir | Disponible | 200 929€ | E 303 | Appt. | T2 | 39.13m2 | 3ème | Disponible | 200 929€ | Voir |
| Voir | Disponible | 196 334€ | E 403 | Appt. | T2 | 39.13m2 | 4ème | Disponible | 196 334€ | Voir |
| Voir | Disponible | 211 223€ | E 601 | Appt. | T2 | 43.88m2 | 6ème | Disponible | 211 223€ | Voir |
| Voir | Disponible | 214 095€ | E 701 | Appt. | T2 | 43.88m2 | 7ème | Disponible | 214 095€ | Voir |
| Voir | Optionné | 211 268€ | E 301 | Appt. | T2 | 43.88m2 Le bon plan | 3ème | Optionné Mais pas encore vendu 😉 | 211 268€ | Voir |
| Voir | Disponible | 203 227€ | E 401 | Appt. | T2 | 43.88m2 | 4ème | Disponible | 203 227€ | Voir |
| Voir | Disponible | 198 631€ | E 405 | Appt. | T2 | 44m2 | 4ème | Disponible | 198 631€ | Voir |
| Voir | Disponible | 181 660€ | E 605 | Appt. | T2 | 44m2 | 6ème | Disponible | 181 660€ | Voir |
| Voir | Disponible | 209 500€ | E 705 | Appt. | T2 | 44m2 | 7ème | Disponible | 209 500€ | Voir |
| Voir | Disponible | 206 673€ | E 305 | Appt. | T2 | 44m2 | 3ème | Disponible | 206 673€ | Voir |
| Voir | Disponible | 210 637€ | E 804 | Appt. | T2 | 61.97m2 | 8ème | Disponible | 210 637€ | Voir |
| Voir | Optionné | 175 166€ | D 402 | Appt. | T2 | 39.13m2 | 4ème | Optionné Mais pas encore vendu 😉 | 175 166€ | Voir |
| Voir | Disponible | 198 586€ | D 602 | Appt. | T2 | 39.13m2 | 6ème | Disponible | 198 586€ | Voir |
| Voir | Disponible | 195 139€ | D 304 | Appt. | T2 | 44m2 | 3ème | Disponible | 195 139€ | Voir |
| Voir | Disponible | 195 139€ | D 404 | Appt. | T2 | 44m2 | 4ème | Disponible | 195 139€ | Voir |
| Voir | Disponible | 200 883€ | D 604 | Appt. | T2 | 44m2 | 6ème | Disponible | 200 883€ | Voir |
| Voir | Disponible | 203 181€ | D 703 | Appt. | T2 | 40.1m2 | 7ème | Disponible | 203 181€ | Voir |
| Voir | Disponible | 203 181€ | D 803 | Appt. | T2 | 40.1m2 | 8ème | Disponible | 203 181€ | Voir |