1 430 000€
Appt. au 1er
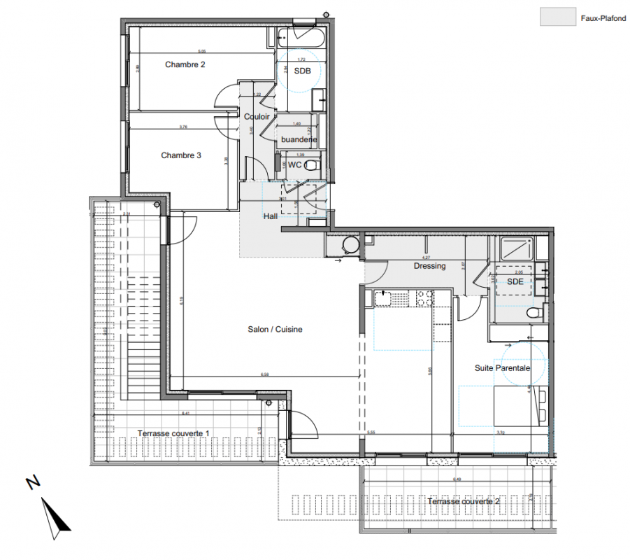
T4
131.52 m²
-
Nice (06000)
1er trimestre 2027
01 81 80 39 10
Présentation du programme "LE MONTEBELLO"
Programme immobilier neuf LE MONTEBELLO à NICE - Résidence de prestige avec vue mer.
Située sur les hauteurs de Nice, au coeur du quartier résidentiel de Bellet, la résidence "LE MONTEBELLO" bénéficie d'un emplacement rare en tête de colline, offrant des vues dégagées jusqu'à la mer Méditerranée. Ce programme immobilier neuf à Nice s'adresse à une clientèle exigeante en quête d'un cadre de vie exclusif, entre nature, élégance et sérénité.
La résidence se compose de deux îlots intimistes d'un étage seulement, parfaitement intégrés à la pente naturelle du terrain afin de préserver l'environnement, les perspectives et l'intimité de chaque logement. L'architecture contemporaine, sobre et raffinée, met en valeur des matériaux nobles et durables : pierre de taille massive issue de carrières régionales, enduit minéral fin, menuiseries aluminium et garde-corps en verre. Majoritairement orientés plein sud, les bâtiments sont implantés en décalé pour optimiser l'ensoleillement et les vues.
LE MONTEBELLO propose une collection très limitée d'appartements haut de gamme, allant des appartements de plain-pied avec jardins privatifs aux penthouses d'exception avec vastes terrasses en rooftop. Chaque logement bénéficie d'un espace extérieur privatif : jardin, balcon ou terrasse, et pour certains, d'une vue imprenable sur la mer.
Un parc paysager méditerranéen d'exception : La résidence s'inscrit au coeur d'un parc luxuriant de 6 500 m² d'espaces verts en pleine terre, véritable écrin végétal inspiré de la flore méditerranéenne, reconnue comme l'une des plus riches d'Europe. Oliviers, lauriers, micocouliers, tilleuls, frênes, pins, chênes, citronniers et orangers composent un jardin arboré comptant 92 arbres, offrant au fil des saisons une diversité de couleurs et de senteurs. Un cadre naturel privilégié, rare sur les hauteurs de Nice.
Confort, luminosité et art de vivre : La majorité des appartements bénéficie de plans traversants avec au minimum une double orientation, garantissant une luminosité naturelle optimale et une ventilation naturelle efficace. Exclusivement réservée aux résidents, une piscine privative avec plage s'intègre harmonieusement au jardin méditerranéen, prolongeant l'art de vivre propre à la Côte d'Azur.
Prestations de grand standing : Les appartements offrent des prestations soignées et des finitions haut de gamme :
- Carrelage en grès cérame 60...