146 900€
Appt. au 0-RDC
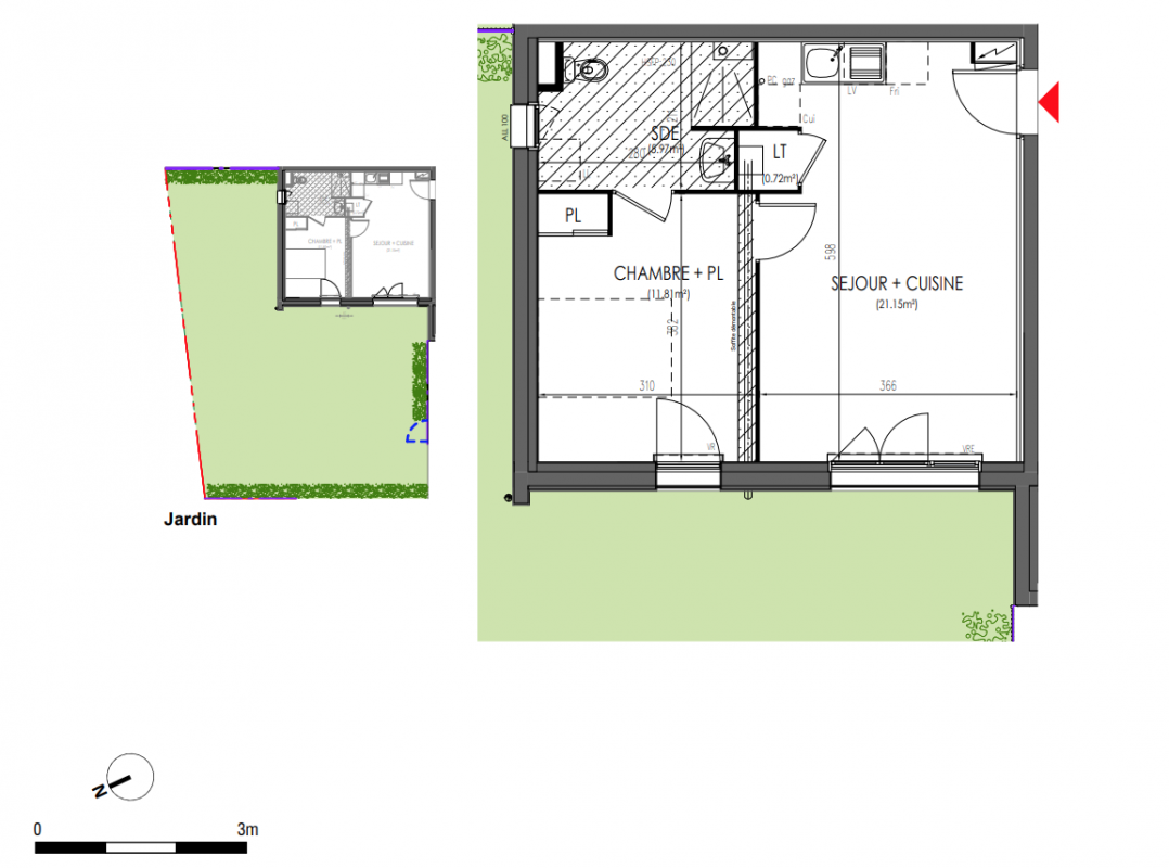
T2
39.65 m²
-
La Roche-sur-Yon (85000)
2ème trimestre 2027
01 81 80 39 10
Présentation du programme "LES JARDINS DE LA BROSSARDIERE"
RENCONTREZ-NOUS DANS NOTRE BOUTIQUE AU 5 PLACE DU THEATRE A LA ROCHE-SUR-YON SUR RENDEZ-VOUS !
Découvrez notre nouvelle résidence à La Roche-sur-Yon, ville dynamique et pleine de charme. Au cœur du quartier de la Brossardière, réputé pour ses coulées vertes et son atmosphère paisible, notre résidence « LES JARDINS DE LA BROSSARDIERE » offre un véritable havre de paix. À seulement 11 minutes* à vélo de la Place Napoléon, cette résidence bénéficie d'un emplacement idéal pour allier tranquillité et accessibilité !
« LES JARDINS DE LA BROSSARDIERE » se compose de 28 appartements, du studio au 3 pièces, répartis sur 3 bâtiments de 2 étages seulement. De plus, 6 Appartements-Jardins, de 2 et 3 pièces, se trouvent dans un bâtiment d’un seul étage.
Chaque logement bénéficie d’un balcon ou d’un jardin privatif engazonné, véritable prolongement de votre intérieur. Afin de préserver l’harmonie paysagère du quartier, un espace arboré est également aménagé, apportant une touche de verdure et de quiétude. Les résidents disposent d’une place de stationnement extérieure et d’un local à vélo commun pour un quotidien pratique et agréable. Forte de son expérience de plus de 50 ans, European Homes met tout son savoir-faire au service de votre bien-être. Notre concept unique des Appartements-Jardins, alliant confort et intimité, vous permet de vivre dans un cadre exceptionnel. Ces habitations, disponibles de plain-pied ou en duplex, sont pensées pour répondre à tous les modes de vie. Ne laissez pas passer cette occasion de rejoindre un lieu où qualité de vie et nature se rencontrent harmonieusement.
Vivez dans un cadre de vie pratique avec de nombreux équipements à portée de main. À seulement 7 minutes* à pied, vous trouverez 6 lignes de bus et vous pourrez rejoindre en 15 minutes* à pied la gare SNCF. Les principaux axes routiers (A87, D763, D948, D160) assurent une connexion rapide avec Nantes, Challans et les Sables-d'Olonne. Côté commodités, vous bénéficiez à moins de 15 minutes* à pied de commerces de proximité (hypermarché, boulangerie), d’écoles de la maternelle au collège. De plus, le lycée est accessible en 11 minutes* en bus et le centre commercial Les Flâneries à 7 minutes* en voiture. Pour vos loisirs, le complexe sportif Pierre Alain Gaudel est à seulement 6 minutes* à pied, le complexe aquatique et la patinoire à 13 minutes* à pied et de nombreux terrains de sport sont à 5 minutes* à vélo. Côté santé, le centre hospitalier se trouve à 8 minutes* en voiture
Autres logements T2 du programme "LES JARDINS DE LA BROSSARDIERE"
| Disponibilité | Prix | No | Genre | Pièces | Surface | Étage | Disponibilité | Prix | ||
|---|---|---|---|---|---|---|---|---|---|---|
| Voir | Disponible | 175 900€ | C003 | Appt. | T2 | 49.99m2 | 0-RDC | Disponible | 175 900€ | Voir |
| Voir | Disponible | 169 900€ | C102 | Appt. | T2 | 49.86m2 | 1er | Disponible | 169 900€ | Voir |
| Voir | Disponible | 174 900€ | C202 | Appt. | T2 | 49.86m2 | 2ème | Disponible | 174 900€ | Voir |
| Voir | Disponible | 139 900€ | E101 | Appt. | T2 | 39.66m2 | 1er | Disponible | 139 900€ | Voir |