Prix
281 500€
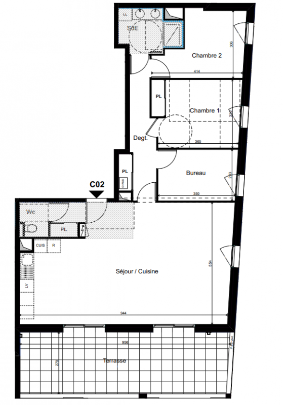
Type
Appt. au 0-RDC
Pièces
T4
Surface
95.94 m²
Exposition
-
Ville
Cholet (49280)
Livraison
4ème trimestre 2024
Informations
01 81 80 39 10

Présentation du programme "VILLA BON PASTEUR"

DERNIERES OPPORTUNITES ! EMMENAGEZ IMMEDIATEMENT !
C'est sur les hauteurs de Cholet, nichée derrière un magnifique mur de pierres sèches, au coeur d'un écrin de verdure, que prend place la VILLA BON PASTEUR. La ligne de bus N°1, accessible au pied de l'immeuble, permet une liaison directe avec le centre ville et ses animations en quelques minutes. La gare SNCF, toute proche, propose notamment une desserte d'Angers et de Nantes en moins d'une heure. Découvrez nos dernières opportunités de 3 et 4 pièces ! la VILLA BON PASTEUR vous offre l'opportunité de choisir un cocon à votre image, répondant aux aspirations et aux besoins qui vous sont précieux.

Autres logements T4 du programme "VILLA BON PASTEUR"

Pas de logements disponibles
DO NOT CLICK