272 000€
Appt. au 1er
T2
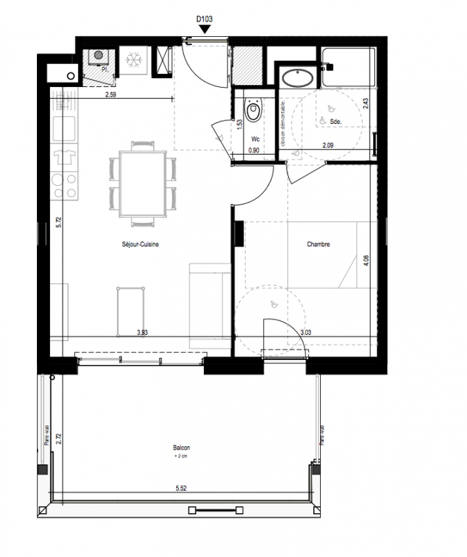
42.7 m²
-
La Turballe (44420)
4ème trimestre 2027
01 81 80 39 10
Présentation du programme "La Marjolaine"
Appartements neufs à La Turballe : Les travaux ont démarré pour la résidence La Marjolaine La résidence La Marjolaine est située à La Turballe, charmante ville côtière de la presqu’île guérandaise. À moins de 300 mètres de la plage, du port et des commodités locales, cette nouvelle résidence propose 57 appartements neufs, allant du T2 au T5. Parfaitement conçus pour répondre à tous les styles de vie, ces logements offrent un cadre de vie idéal au bord de l’Atlantique. La livraison est prévue pour le 4ème trimestre 2026, vous permettant de planifier dès aujourd'hui votre futur chez vous dans un environnement privilégié.Espaces extérieurs spacieux et baignés de lumière : Les appartements de La Marjolaine se distinguent par leurs généreux espaces extérieurs, incluant de grandes terrasses, des balcons ou des loggias. Les orientations, également optimales, permettent de profiter au maximum de la lumière naturelle. Vous pouvez ainsi profiter d’une atmosphère lumineuse et agréable en toute saison. Que ce soit pour un petit-déjeuner ensoleillé ou une soirée entre amis, ces espaces extérieurs deviennent une extension naturelle de votre habitat Stationnements sécurisés et pratiques en sous-sol : Pour votre confort quotidien, chaque appartement de la résidence est équipé d’un ou plusieurs stationnements en sous-sol. Ces stationnements sont accessibles directement par ascenseur. Que ce soit un parking ou un garage, ces espaces sécurisés garantissent un stationnement sans souci dans ce quartier prisé de La Turballe.Une architecture contemporaine et des prestations haut de gamme : La résidence La Marjolaine, appartements à La Turballe, se distingue par son architecture contemporaine, qui s’intègre harmonieusement dans le paysage côtier de la ville. Les prestations proposées sont de standing, avec une attention particulière portée à la qualité des matériaux et des finitions. Chaque détail a donc été pensé pour offrir un cadre de vie élégant et confortable. Le tout en assurant une réelle valorisation de votre investissement immobilier.Un emplacement privilégié pour un appartement à La Turballe : Vivre à La Turballe, dans La Marjolaine, c’est profiter d’un emplacement exceptionnel en bord de mer. La plage, le port, et le marché sont à seulement quelques pas, offrant un accès facile à toutes les commodités et aux plaisirs de la vie en bord de mer. Que vous souhaitiez vous balader le long de la côte, faire vos courses au marché local, ou profiter des nombreux comme...
Autres logements T2 du programme "La Marjolaine"
| Disponibilité | Prix | No | Genre | Pièces | Surface | Étage | Disponibilité | Prix | ||
|---|---|---|---|---|---|---|---|---|---|---|
| Voir | Disponible | 329 000€ | D102 | Appt. | T2 | 49.85m2 | 1er | Disponible | 329 000€ | Voir |
| Voir | Disponible | 271 000€ | D104 | Appt. | T2 | 42.75m2 | 1er | Disponible | 271 000€ | Voir |
| Voir | Disponible | 321 000€ | D203 | Appt. | T2 | 42.75m2 | 2ème | Disponible | 321 000€ | Voir |
| Voir | Disponible | 262 000€ | D003 | Appt. | T2 | 42.7m2 | 0-RDC | Disponible | 262 000€ | Voir |