Prix
235 000€
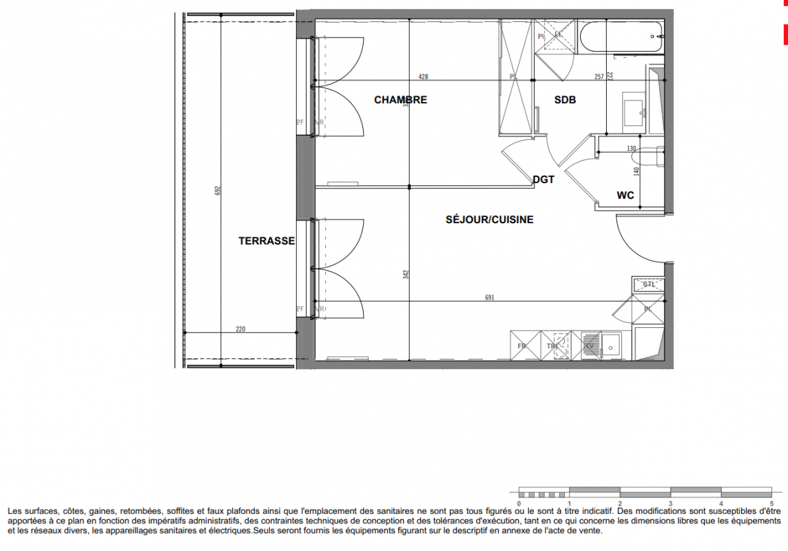
Type
Appt. au 0-RDC
Pièces
T2
Surface
45 m²
Exposition
-
Ville
Toulouse (31000)
Livraison
4ème trimestre 2025
Informations
01 81 80 39 10

Présentation du programme "Fresh Touch"

 Située non loin de la Gare SNCF de Saint-Martin-du-Touch et d’un parc de 1.5 hectares, la résidence Fresh Touch s’élèvera au pied d’une grande place piétonne végétalisée et bordée de commerces : le « nouveau cœur de Saint-Martin ». Fresh Touch se démarque par son architecture contemporaine, durable mais surtout végétalisée !Composée de 3 bâtiments, l’adresse abrite 85 logements du 2 pièces au 5 pièces, dont de très beaux appartements avec terrasses et de généreuses maisons sur le toit. Elle s’organise autour d’un jardin paysager à la végétation luxuriante en rez-de-chaussée et d’une terrasse engazonnée au premier étage. Ce remarquable îlot de fraîcheur complète les nombreuses jardinières attenantes aux terrasses, à la manière de jardins suspendus. 

Autres logements T2 du programme "Fresh Touch"

Disponibilité Prix Genre Pièces Surface Étage
Voir
Disponible
239 000€ Appt. T2 45m2 0-RDC
DO NOT CLICK