Prix
223 900€
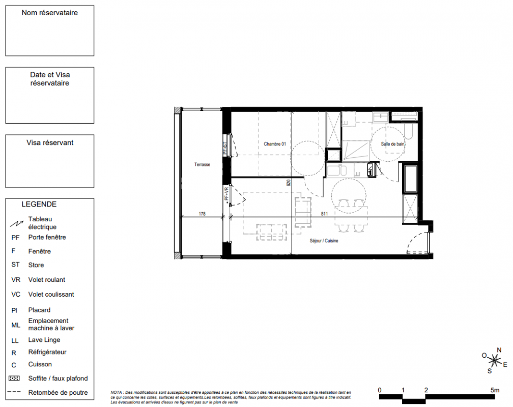
Type
Appt. au 3ème
Pièces
T2
Surface
48.07 m²
Exposition
-
Ville
Blagnac (31700)
Livraison
4ème trimestre 2026
Informations
01 81 80 39 10

Présentation du programme "CARRE DES CEDRES"

Réalisée par Vianova, la résidence Carré des Cèdres présente une gamme d’appartements allant du 2 au 5 pièces. Chaque logement est agrémenté de prestations haut de gamme, proposant des espaces extérieurs comme des loggias invitant à la détente. La résidence s’inscrit dans un projet de renouvellement urbain promettant à terme de nombreux espaces verts et circulation douce

Dans la prisée commune de Blagnac à quelques minutes du centre-ville de Toulouse, ce programme immobilier offre un cadre de vie pratique : longé par le tram T1 et à 6 minutes à pied des commerces. Carré des Cèdres garantit un placement immobilier de premier choix, idéal pour un premier achat grâce à la TVA 5,5% et le PTZ.

Pour en savoir plus sur cette opportunité unique, prenez rendez-vous dès maintenant avec l'un de nos conseillers commerciaux !

Autres logements T2 du programme "CARRE DES CEDRES"

Disponibilité Prix Genre Pièces Surface Étage
Voir
Optionné
262 700€ Appt. T2 53.19m2 6ème
DO NOT CLICK