Prix
206 899€
Type
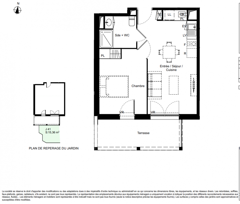
Appt. au 0-RDC
Pièces
T2
Surface
40.63 m²
Exposition
Sud
Ville
Pessac (33600)
Livraison
4ème trimestre 2027
Informations
01 81 80 39 10

Présentation du programme "LES JARDINS ETOILES"

La nouvelle résidence Les Jardins Étoilés s’installe dans un cadre résidentiel préservé, entouré de verdure et bordé par la forêt du Bourgailh, offrant un véritable havre de paix. Elle se compose de 106 logements, soit 12 villas T4 et T5 avec garage, et 94 appartements du T2 au T4 répartis dans 8 bâtiments en R+1.
Les façades sont recouvertes de parements brique dans des tonalités de rouge afin de s’intégrer au mieux dans l’environnement boisé.
L'orientation minutieuse garantit un éclairage naturel optimal, avec des grandes baies vitrées favorisant une connexion harmonieuse avec l’extérieur.
Un jardin potager partagé aménagé de bancs est à disposition des résidents, en cœur d’ilot, créant ainsi un véritable lieu de vie pour se retrouver et partager des moments de convivialité.

Autres logements T2 du programme "LES JARDINS ETOILES"

Pas de logements disponibles
DO NOT CLICK