Prix
559 000€
Type
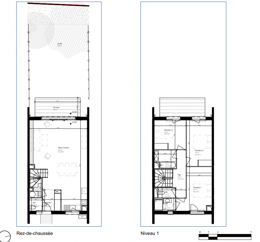
Maison au 0-RDC
Pièces
T4
Surface
103.58 m²
Exposition
-
Ville
Mérignac (33700)
Livraison
4ème trimestre 2026
Informations
01 81 80 39 10

Présentation du programme "MAGNOLIA"


Parquet pour les pièces sèches
Carrelage grand format pour les pièces humides
Bac à douche extra plat et WC suspendus
Double hauteur pour un séjour cathédrale dans les maisons
PAC air/air pour les maisons
Volets roulants électriques
Jusqu’à 100m² de terrasse pour les appartements
Jusqu’à 600m² de jardin pour les maisons

Autres logements T4 du programme "MAGNOLIA"

Disponibilité Prix Genre Pièces Surface Étage
Voir
Disponible
615 000€ Maison T4 103.78m2 0-RDC
Voir
Disponible
570 000€ Maison T4 103.81m2
Le bon plan
0-RDC
DO NOT CLICK