Ce lot n’est plus disponible chez VIANOVA ou est vendu.

Vous pouvez revenir dans 24h pour vérifier le stock à jour ou contacter un conseiller Vianova pour vérifier le stock en direct.
Vous pouvez également continuer votre recherche sur notre site « ici ».

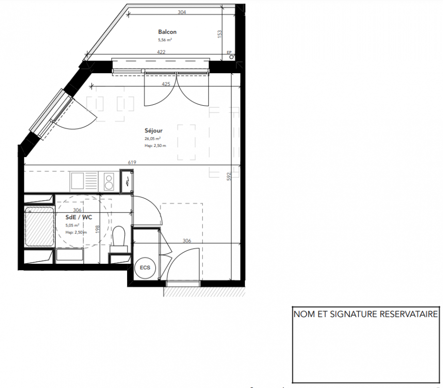
Prix
209 000€
Type
Appt. au 2ème
Pièces
-
Surface
31.1 m²
Exposition
-
Ville
Mérignac (33700)
Livraison
4ème trimestre 2026
Informations
01 81 80 39 10

Présentation du programme "MAGNOLIA"


Parquet pour les pièces sèches
Carrelage grand format pour les pièces humides
Bac à douche extra plat et WC suspendus
Double hauteur pour un séjour cathédrale dans les maisons
PAC air/air pour les maisons
Volets roulants électriques
Jusqu’à 100m² de terrasse pour les appartements
Jusqu’à 600m² de jardin pour les maisons

Autres logements - du programme "MAGNOLIA"

Disponibilité Prix Genre Pièces Surface Étage
Voir
Disponible
190 000€ Appt. - 31.1m2 0-RDC
DO NOT CLICK