Prix
299 100€
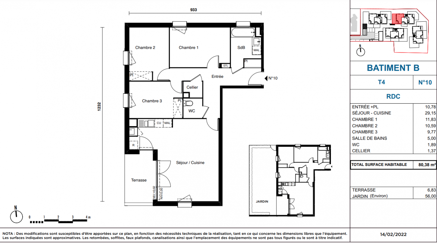
Type
Appt. au 0-RDC
Pièces
T4
Surface
80.38 m²
Exposition
Sud-Ouest
Ville
Carbon-Blanc (33560)
Livraison
4ème trimestre 2026
Informations
01 81 80 39 10

Présentation du programme "L'ÉCRIN BLANC"

Programme neuf CARBON-BLANC (33560). Prenez contact avec Vianova pour plus d'informations!

Autres logements T4 du programme "L'ÉCRIN BLANC"

Disponibilité Prix Genre Pièces Surface Étage
Voir
Disponible
286 200€ Appt. T4 80.97m2 1er
DO NOT CLICK