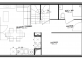
Maison au 0-RDC
T3
75.2 m²
Ouest
Carbon-Blanc (33560)
4ème trimestre 2027
01 81 80 39 10
Présentation du programme "Domaine Lafontaine"
Conçue par l'atelier SOHO Aquitaine, la résidence adopte une architecture contemporaine et discrète parfaitement intégrée dans son environnement naturel. Organisée en îlots à taille humaine, elle propose un choix rare entre maisons individuelles de 2 à 3 chambres et appartements du 2 à 3 pièces, répartis dans de petits bâtiments d'un seul étage. Les façades aux teintes douces, les volets aluminium et les toitures en tuiles grand moule participent à l'élégance d'ensemble, offrant une esthétique intemporelle et durable.Un cadre de vie verdoyant et sereinPensé comme un havre de tranquillité, le domaine offre un environnement paysager exceptionnel, avec plus de 200 arbres plantés, dont des fruitiers, des haies bocagères et des massifs boisés. Ce cadre favorise à la fois la biodiversité et les moments de détente partagés, grâce à un espace engazonné commun et un composteur de quartier. À l'intérieur, les logements privilégient confort et fonctionnalité : séjours lumineux, double orientation pour les appartements, jardins privatifs ou balcons, prestations soignées, chauffage individuel et nombreux rangements. Deux locaux vélos complètent l'ensemble pour encourager une mobilité douce au quotidien.
Autres logements T3 du programme "Domaine Lafontaine"
| Disponibilité | Prix | No | Genre | Pièces | Surface | Étage | Disponibilité | Prix | ||
|---|---|---|---|---|---|---|---|---|---|---|
| Voir | Disponible | B14 | Appt. | T3 | 63.28m2 | 1er | Disponible | Voir | ||
| Voir | Disponible | A02 | Appt. | T3 | 63.27m2 | 0-RDC | Disponible | Voir | ||
| Voir | Disponible | A03 | Appt. | T3 | 63.27m2 | 0-RDC | Disponible | Voir | ||
| Voir | Disponible | A06 | Appt. | T3 | 63.27m2 | 0-RDC | Disponible | Voir | ||
| Voir | Disponible | A07 | Appt. | T3 | 63.27m2 | 0-RDC | Disponible | Voir | ||
| Voir | Disponible | A10 | Appt. | T3 | 63.28m2 | 1er | Disponible | Voir | ||
| Voir | Disponible | A11 | Appt. | T3 | 63.28m2 | 1er | Disponible | Voir | ||
| Voir | Disponible | B02 | Appt. | T3 | 63.27m2 | 0-RDC | Disponible | Voir | ||
| Voir | Disponible | B03 | Appt. | T3 | 63.27m2 | 0-RDC | Disponible | Voir | ||
| Voir | Disponible | B06 | Appt. | T3 | 63.27m2 | 0-RDC | Disponible | Voir | ||
| Voir | Disponible | B07 | Appt. | T3 | 63.27m2 | 0-RDC | Disponible | Voir | ||
| Voir | Disponible | B10 | Appt. | T3 | 63.28m2 | 1er | Disponible | Voir | ||
| Voir | Disponible | B15 | Appt. | T3 | 63.28m2 Le bon plan | 1er | Disponible | Voir | ||
| Voir | Disponible | M13 | Maison | T3 | 75.2m2 | 0-RDC | Disponible | Voir | ||
| Voir | Disponible | M14 | Maison | T3 | 75.2m2 | 0-RDC | Disponible | Voir | ||
| Voir | Disponible | M17 | Maison | T3 | 75.2m2 | 0-RDC | Disponible | Voir | ||
| Voir | Disponible | M18 | Maison | T3 | 75.2m2 | 0-RDC | Disponible | Voir | ||
| Voir | Disponible | M19 | Maison | T3 | 75.2m2 | 0-RDC | Disponible | Voir | ||
| Voir | Disponible | M20 | Maison | T3 | 75.2m2 | 0-RDC | Disponible | Voir | ||
| Voir | Disponible | M21 | Maison | T3 | 75.2m2 | 0-RDC | Disponible | Voir |


