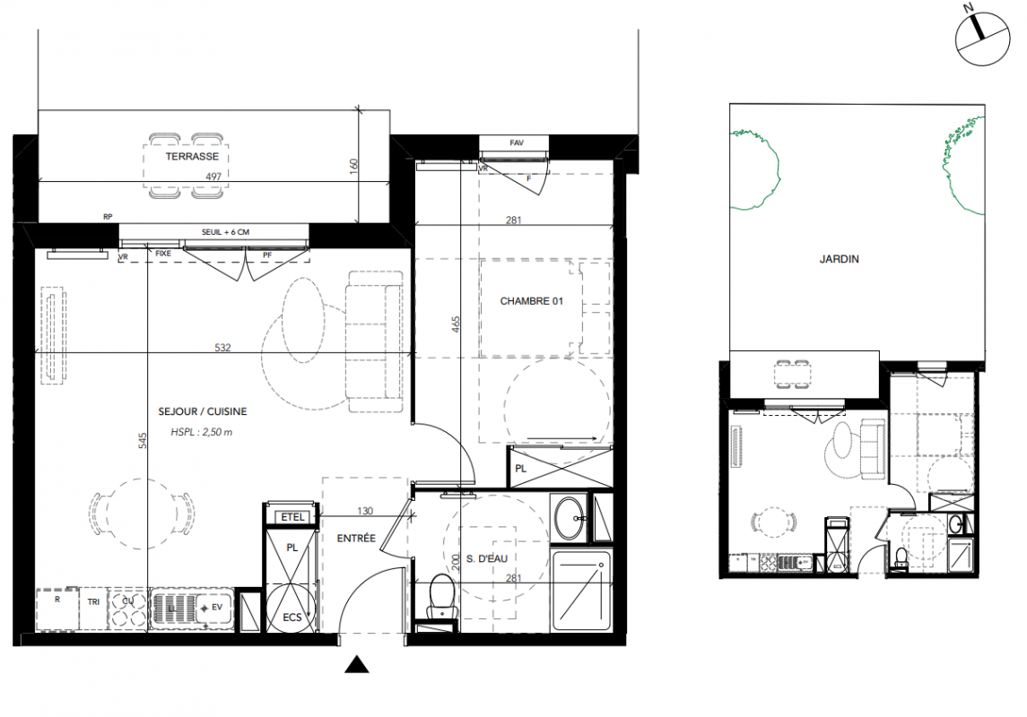
201 200€
Appt. au 0-RDC
T2
46.55 m²
Nord
Carbon-Blanc (33560)
3ème trimestre 2028
01 81 80 39 10
Présentation du programme "ALBA"
Découvrez notre nouvelle résidence VINCI-Immobilier à Carbon-Blanc !
Située dans le département de la Gironde, au cœur de la région Nouvelle-Aquitaine, Carbon-Blanc est une charmante commune de 8 000 habitants, à seulement quelques kilomètres au nord de Bordeaux. Cette ville à taille humaine séduit par son cadre de vie préservé, son environnement naturel et sa proximité immédiate avec la métropole bordelaise.
La commune bénéficie de nombreux espaces verts, de parcs et de zones boisées, idéales pour les balades en famille ou les activités de plein air. Très investie dans la vie locale, elle dispose d’un tissu associatif riche, proposant une large variété d’activités culturelles, sportives et sociales.
Notre résidence est idéalement située rue Émile Combes, dans un quartier calme et résidentiel, bénéficiant d’un emplacement privilégié. L’hyper-centre de Carbon-Blanc, avec ses commerces, services et équipements, se trouve à seulement à 5 minutes à pied.
Elle profite également d’une excellente desserte en transports en commun. Un arrêt de bus se trouve au pied de la résidence, tandis que le tram A est rapidement accessible via la station « La Gardette – Bassens ». À cela s’ajoute la gare SNCF, située à 600 mètres, permettant de rejoindre Bordeaux Saint-Jean en moins de 20 minutes.
Les appartements, du T1 au T3, disposent tous d’un stationnement privatif. Conçus pour répondre aux besoins de chacun, ils allient confort et fonctionnalité, offrant un cadre de vie harmonieux et parfaitement intégré à son environnement.
N’attendez plus pour contacter et obtenir plus d’informations auprès de l’un de nos conseillers !
Autres logements T2 du programme "ALBA"
| Disponibilité | Prix | No | Genre | Pièces | Surface | Étage | Disponibilité | Prix | ||
|---|---|---|---|---|---|---|---|---|---|---|
| Voir | Disponible | 189 400€ | LA011 | Appt. | T2 | 45.25m2 | 0-RDC | Disponible | 189 400€ | Voir |
| Voir | Disponible | 200 900€ | LA012 | Appt. | T2 | 47.37m2 | 0-RDC | Disponible | 200 900€ | Voir |
| Voir | Disponible | 202 900€ | LA013 | Appt. | T2 | 47.37m2 | 0-RDC | Disponible | 202 900€ | Voir |
| Voir | Disponible | 204 900€ | LA014 | Appt. | T2 | 47.37m2 | 0-RDC | Disponible | 204 900€ | Voir |
| Voir | Disponible | 204 000€ | LA017 | Appt. | T2 | 47.16m2 | 0-RDC | Disponible | 204 000€ | Voir |
| Voir | Disponible | 197 100€ | LA018 | Appt. | T2 | 45.62m2 | 0-RDC | Disponible | 197 100€ | Voir |
| Voir | Disponible | 204 000€ | LA019 | Appt. | T2 | 47.16m2 | 0-RDC | Disponible | 204 000€ | Voir |
| Voir | Disponible | 204 000€ | LA021 | Appt. | T2 | 47.16m2 | 0-RDC | Disponible | 204 000€ | Voir |
| Voir | Disponible | 209 500€ | LA112 | Appt. | T2 | 51.64m2 | 1er | Disponible | 209 500€ | Voir |
| Voir | Disponible | 204 900€ | LA113 | Appt. | T2 | 47.37m2 | 1er | Disponible | 204 900€ | Voir |
| Voir | Disponible | 208 900€ | LA115 | Appt. | T2 | 47.37m2 | 1er | Disponible | 208 900€ | Voir |
| Voir | Disponible | 208 000€ | LA118 | Appt. | T2 | 47.16m2 | 1er | Disponible | 208 000€ | Voir |
| Voir | Disponible | 201 100€ | LA119 | Appt. | T2 | 45.62m2 | 1er | Disponible | 201 100€ | Voir |
| Voir | Disponible | 208 000€ | LA120 | Appt. | T2 | 47.16m2 | 1er | Disponible | 208 000€ | Voir |
| Voir | Disponible | 205 200€ | LA121 | Appt. | T2 | 46.55m2 | 1er | Disponible | 205 200€ | Voir |
| Voir | Disponible | 208 000€ | LA122 | Appt. | T2 | 47.16m2 | 1er | Disponible | 208 000€ | Voir |
| Voir | Disponible | 213 500€ | LA212 | Appt. | T2 | 51.64m2 | 2ème | Disponible | 213 500€ | Voir |
| Voir | Disponible | 208 900€ | LA213 | Appt. | T2 | 47.37m2 | 2ème | Disponible | 208 900€ | Voir |
| Voir | Disponible | 212 900€ | LA215 | Appt. | T2 | 47.37m2 | 2ème | Disponible | 212 900€ | Voir |
| Voir | Disponible | 212 000€ | LA218 | Appt. | T2 | 47.16m2 | 2ème | Disponible | 212 000€ | Voir |
| Voir | Disponible | 205 100€ | LA219 | Appt. | T2 | 45.62m2 | 2ème | Disponible | 205 100€ | Voir |
| Voir | Disponible | 212 000€ | LA220 | Appt. | T2 | 47.16m2 | 2ème | Disponible | 212 000€ | Voir |
| Voir | Disponible | 209 200€ | LA221 | Appt. | T2 | 46.55m2 | 2ème | Disponible | 209 200€ | Voir |
| Voir | Disponible | 212 000€ | LA222 | Appt. | T2 | 47.16m2 | 2ème | Disponible | 212 000€ | Voir |
| Voir | Disponible | 217 500€ | LA308 | Appt. | T2 | 51.64m2 | 3ème | Disponible | 217 500€ | Voir |
| Voir | Disponible | 212 900€ | LA309 | Appt. | T2 | 47.37m2 | 3ème | Disponible | 212 900€ | Voir |
| Voir | Disponible | 207 100€ | LA313 | Appt. | T2 | 45.62m2 | 3ème | Disponible | 207 100€ | Voir |
| Voir | Disponible | 214 000€ | LA314 | Appt. | T2 | 47.16m2 | 3ème | Disponible | 214 000€ | Voir |
| Voir | Disponible | 211 200€ | LA315 | Appt. | T2 | 46.55m2 | 3ème | Disponible | 211 200€ | Voir |