Prix
409 300€
409 300€
Type
Appt. au 0-RDC
Appt. au 0-RDC
Pièces
T3
T3
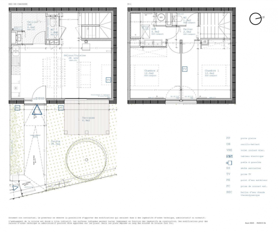
Surface
67 m²
67 m²
Exposition
Est
Est
Ville
Bordeaux (33000)
Bordeaux (33000)
Livraison
4ème trimestre 2023
4ème trimestre 2023
Informations
01 81 80 39 10
01 81 80 39 10
Présentation du programme "INOUI"
INOUI est un programme de 27 logements situés dans le quartier de La Bastide à Bordeaux. Il offre un cadre de vie doux et rare. INOUI est constitué de 20 appartements du T1 au T4, de 4 échoppes capables, et de 3 maisons en T3 avec extérieurs. Des logements vastes, au sein d’une résidence participative. 3 espaces de partage : jardin commun, local d’activité, et terrasse commune et partagée. INOUI s’associe à ENGIE en développant VERTUOZ Communauté, qui permet le suivi de la consommation d'énergie, d’organiser des évènements et d’échanger des services entre voisins.Unique à Bordeaux ! Contactez-nous au 05 46 448 448.