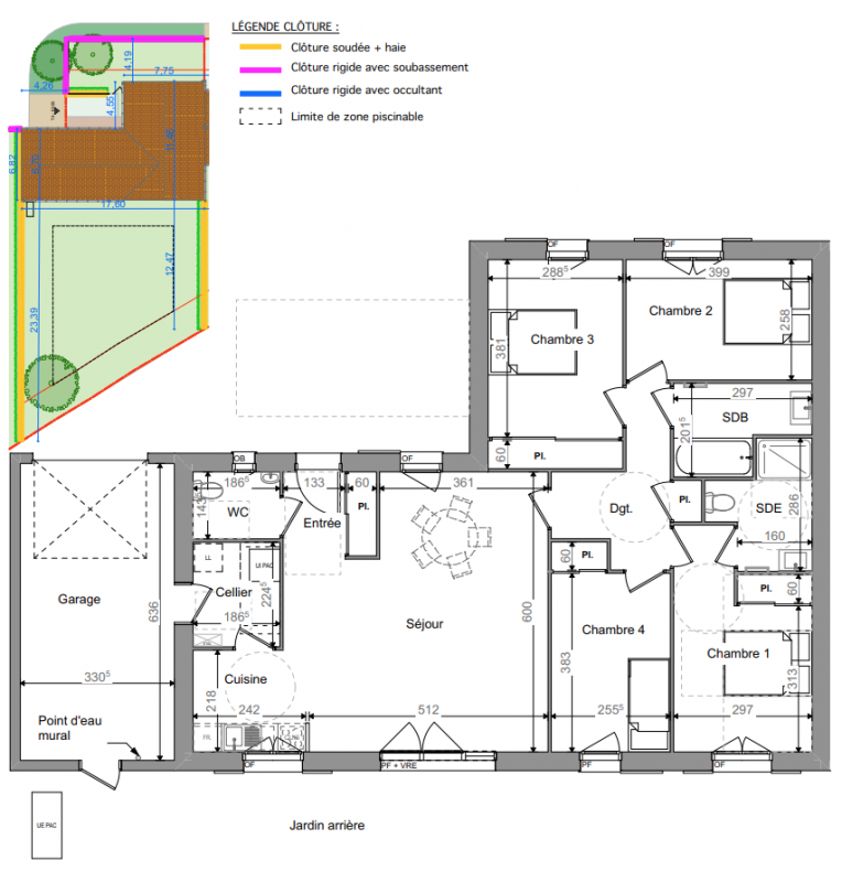
Prix
375 000€
Type
Maison au 0-RDC
Pièces
T5
Surface
107 m²
Exposition
Sud-Ouest
Ville
Saint-Sulpice-de-Royan (17200)
Livraison
4ème trimestre 2026
Informations
01 81 80 39 10

Présentation du programme "NATURIELLES"

Autres logements T5 du programme "NATURIELLES"

Disponibilité Prix Genre Pièces Surface Étage
Voir
Disponible
385 000€ Maison T5 105m2 0-RDC
DO NOT CLICK