122 000€ (TVA 20%)
111 833€ (TVA 10%)
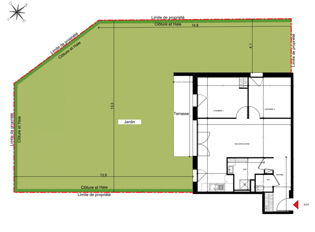
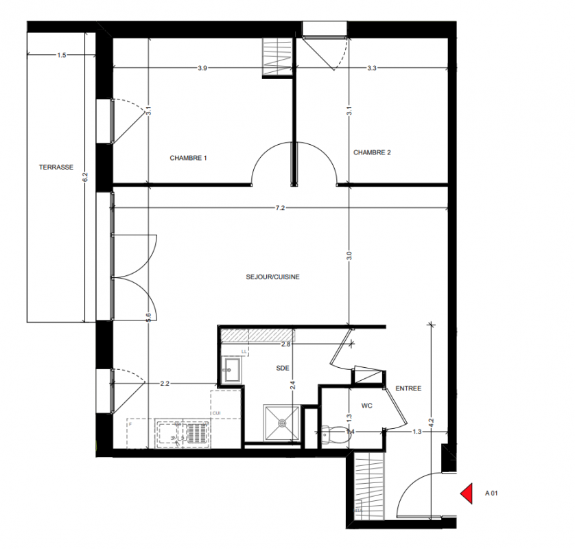
Appt. au 0-RDC
Studio
34.8 m²
-
Darnétal (76160)
1er trimestre 2027
01 81 80 39 10
Présentation du programme "Rodbaek Village"
Succès commercial / Découvrez Rodbaek Village !
Situé en limite de St Martin-du-Vivier découvrez l'environnement exceptionnel de Rodbaek Village à Darnétal.
Sur plus de deux hectares pensés par un paysagiste et un écologue, LogiH Normandie réalise un projet composé de MAISONS en 4 et 5 pièces et d'appartements du T2 au T3.
Eligibles au PTZ et à la location-accession (PSLA) devenez propriétaire aux meilleures conditions grâce à la TVA réduite et une exonération de 15 ans de la taxe foncière*
Pensé pour répondre aux attentes de demain, le projet sera réalisé RE 2020, labellisé "NOUVEL HABITAT" avec des consommations énergétiques maitrisées. *
Rencontrez nos conseillers pour choisir votre futur appartement ou maison !
*conditions en bureau de vente

