Prix
211 200€
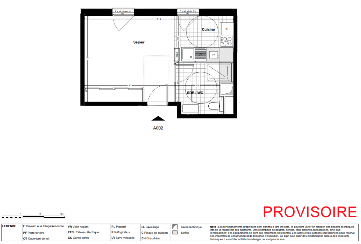
Type
Appt. au 0-RDC
Pièces
Studio
Surface
28.58 m²
Exposition
-
Ville
Cabourg (14390)
Livraison
4ème trimestre 2026
Informations
01 81 80 39 10

Présentation du programme "Symphonie"

[SUCCÈS - TRAVAUX EN COURS - FRAIS DE NOTAIRE OFFERTS*] Découvrez la résidence Symphonie située en hyper centre de Cabourg, au début de l'Avenue de la Mer à Cabourg. À 8 min à pied de la plage, à 2 min seulement des commerces, restaurants, loisirs et services du quotidien. Prestations de qualité sélectionnées pour votre bien-être. ESPACE DE VENTE OUVERT (du mercredi au samedi de 14h à 19h) : 66 avenue de la Mer (parking La Poste). Prenez rendez-vous : 0800 800 874. Care Promotion : https://care-promotion.fr/Symphonie/

Autres logements Studio du programme "Symphonie"

Disponibilité Prix Genre Pièces Surface Étage
Voir
Disponible
262 200€ Appt. Studio 36.02m2 0-RDC
DO NOT CLICK