Prix
399 000€
Type
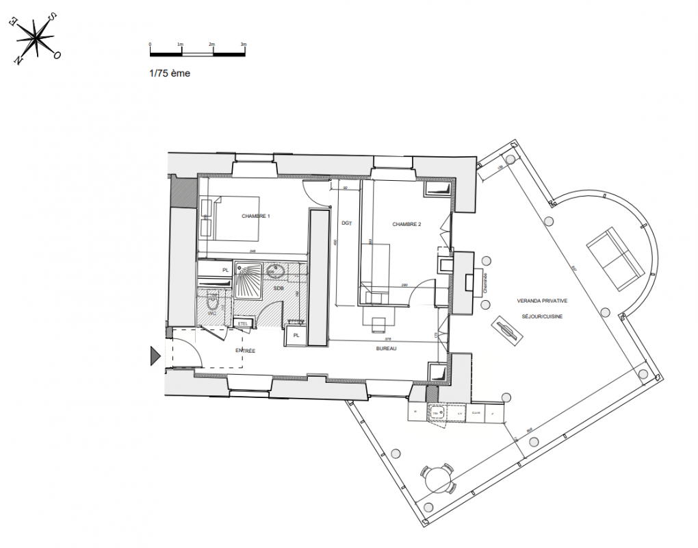
Appt. au 1er
Pièces
T3
Surface
96.44 m²
Exposition
-
Ville
Plaisir (78370)
Livraison
1er trimestre 2026
Informations
01 81 80 39 10

Présentation du programme "LE CLOS DU BUISSON"

Pour cette Résidence Vianova et Nohée® ont sélectionné une adresse à la fois calme et préservée. A deux pas du bus 10, les résidents pourront rejoindre le centre-ville historique en 5 minutes, la gare de Plaisir en 10 minutes et la gare Saint-Quentin-en-Yvelines en 20 minutes. Ils pourront aussi facilement accéder au Château de Plaisir, à la médiathèque et au théâtre, dans un rayon de moins d'un kilomètre.

Dans un écrin de verdure, la résidence met en scène deux bâtisses de vieilles pierres réhabilitées et un élégant bâtiment neuf, organisés autour de cœurs d'îlot arborés. Les appartements, du studio au 3 pièces dans la partie neuve, bénéficient d'un balcon ou d'une terrasse pour la plupart. Les logements réhabilités dans les anciennes bâtisses disposeront pour certains d’une terrasse privative.




Les informations sur les risques auxquels ce bien est exposé sont disponibles sur le site Géorisques : www.georisques.gouv.fr

Autres logements T3 du programme "LE CLOS DU BUISSON"

Disponibilité Prix Genre Pièces Surface Étage
Voir
Disponible
391 000€ Appt. T3 77.82m2 2ème
DO NOT CLICK