Prix
178 900€
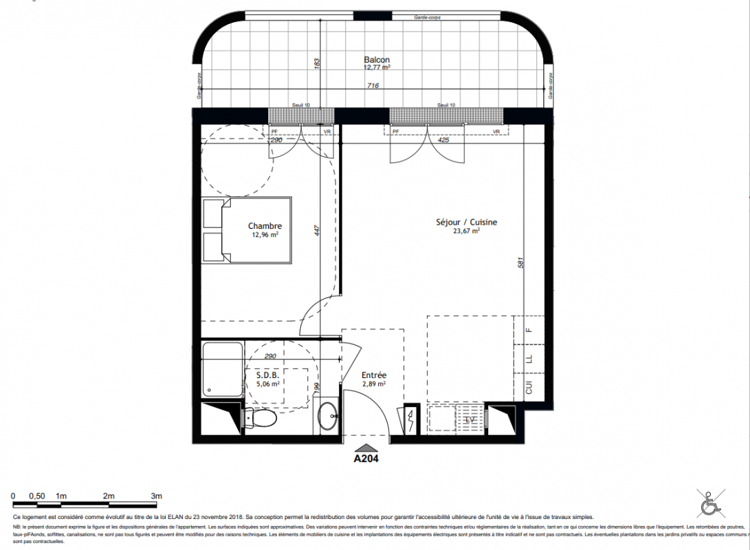
Type
Appt. au 2ème
Pièces
T2
Surface
44.58 m²
Exposition
-
Ville
Mantes-la-Jolie (78200)
Livraison
2ème trimestre 2028
Informations
01 81 80 39 10

Présentation du programme "L'AVANT SEINE"

VOTRE CUISINE OFFERTE + JUSQU'A 15 000 EUROS DE REMISE + VOS FRAIS DE NOTAIRE OFFERTS * ! Une adresse d'exception face à la Seine ! Une résidence raffinée située boulevard des Cygnes, offrant une vue imprenable sur la Seine. Profitez d'un cadre de vie paisible et lumineux. Un panorama unique, un quotidien apaisé. Une architecture élégante sublimée par la Seine et ses berges aménagées. Une résidence à 15 minutes à pied du centre-ville et de la mairie. Des appartements conçus pour votre confort, du studio au 5 pièces, avec balcon, loggia ou terrasse pour prolonger chaque espace de vie. Des aménagements intérieurs variés pour répondre aux besoins de tous. Un investissement rare face à la Seine ! Une opportunité exclusive dans un cadre naturel et urbain harmonieux. Offrez-vous un cadre de vie unique où la sérénité de la Seine rencontre la proximité des commodités. Contactez-nous dès maintenant pour en savoir plus. *Offres valables pour les 5 premiers réservataires. Voir conditions.

Autres logements T2 du programme "L'AVANT SEINE"

Disponibilité Prix Genre Pièces Surface Étage
Voir
Disponible
369 899€ Appt. T2 79.65m2 4ème
DO NOT CLICK