319 900€
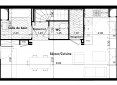
Maison au 0-RDC
T4
82.24 m²
-
Gargenville (78440)
1er trimestre 2028
01 81 80 39 10
Présentation du programme "LES SARMENTS"
FRAIS DE NOTAIRE OFFERTS* « LES SARMENTS » : Le bien chez soi ! Un projet au confort durable qui se distingue par son mode constructif innovant : une construction modulaire en bois naturel qui intègre la technologie Vestack. En copromotion avec ce spécialiste de la construction hors-site et bas-carbone. Idéalement situé, le projet est au coeur d'un quartier résidentiel et il est à proximité immédiate de la gare (5 min à pied). Il se compose d'appartements allant du 2 au 4 pièces ainsi que des maisons de 4 et 5 pièces. « LES SARMENTS » a de nombreux atouts majeurs comme des logements traversants Est-Ouest, un coeur d'îlot végétalisé et la garantie des labellisations RE2020 avec l'atteinte du seuil 2028 (supérieur au seuil réglementaire 2025), Label biodivercity, NF Habitat et Biosourcé de niveau 3. Ce projet se distingue par l'orientation des bâtiments qui maximise l'ensoleillement et dégage des vues lointaines. Votre quotidien sera idyllique !
Contactez-nous dès à présent pour en savoir plus ! * Conditions détaillées en espace de vente.
Autres logements T4 du programme "LES SARMENTS"
| Disponibilité | Prix | No | Genre | Pièces | Surface | Étage | Disponibilité | Prix | ||
|---|---|---|---|---|---|---|---|---|---|---|
| Voir | Disponible | 292 900€ | B01 | Appt. | T4 | 78.82m2 | 0-RDC | Disponible | 292 900€ | Voir |
| Voir | Disponible | 298 900€ | B11 | Appt. | T4 | 78.82m2 | 1er | Disponible | 298 900€ | Voir |
| Voir | Disponible | 309 000€ | A01 | Appt. | T4 | 78.82m2 | 0-RDC | Disponible | 309 000€ | Voir |
| Voir | Disponible | 305 900€ | A11 | Appt. | T4 | 78.82m2 | 1er | Disponible | 305 900€ | Voir |
| Voir | Disponible | 309 900€ | A21 | Appt. | T4 | 78.82m2 | 2ème | Disponible | 309 900€ | Voir |
| Voir | Disponible | 302 900€ | B21 | Appt. | T4 | 78.82m2 | 2ème | Disponible | 302 900€ | Voir |
| Voir | Disponible | 319 900€ | M05 | Maison | T4 | 82.24m2 | 0-RDC | Disponible | 319 900€ | Voir |
| Voir | Optionné | 319 900€ | M06 | Maison | T4 | 82.24m2 | 0-RDC | Optionné Mais pas encore vendu 😉 | 319 900€ | Voir |
| Voir | Disponible | 319 900€ | M08 | Maison | T4 | 82.24m2 | 0-RDC | Disponible | 319 900€ | Voir |

