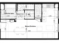
359 900€
Appt. au 0-RDC
-
82.24 m²
-
Gargenville (78440)
2ème trimestre 2028
01 81 80 39 10
Présentation du programme "LES SARMENTS"
FRAIS DE NOTAIRE OFFERTS* « LES SARMENTS » : Le bien chez soi ! Un projet au confort durable qui se distingue par son mode constructif innovant : une construction modulaire en bois naturel qui intègre la technologie Vestack. En copromotion avec ce spécialiste de la construction hors-site et bas-carbone. Idéalement situé, le projet est au coeur d'un quartier résidentiel et il est à proximité immédiate de la gare (5 min à pied). Il se compose d'appartements allant du 2 au 4 pièces ainsi que des maisons de 4 et 5 pièces. « LES SARMENTS » a de nombreux atouts majeurs comme des logements traversants Est-Ouest, un coeur d'îlot végétalisé et la garantie des labellisations RE2020 avec l'atteinte du seuil 2028 (supérieur au seuil réglementaire 2025), Label biodivercity, NF Habitat et Biosourcé de niveau 3. Ce projet se distingue par l'orientation des bâtiments qui maximise l'ensoleillement et dégage des vues lointaines. Votre quotidien sera idyllique !
Contactez-nous dès à présent pour en savoir plus ! * Conditions détaillées en espace de vente.
Autres logements - du programme "LES SARMENTS"
| Disponibilité | Prix | No | Genre | Pièces | Surface | Étage | Disponibilité | Prix | ||
|---|---|---|---|---|---|---|---|---|---|---|
| Voir | Disponible | 164 900€ | B05 | Appt. | - | 38.09m2 | 0-RDC | Disponible | 164 900€ | Voir |
| Voir | Disponible | 169 900€ | B06 | Appt. | - | 38.09m2 | 0-RDC | Disponible | 169 900€ | Voir |
| Voir | Disponible | 169 900€ | B07 | Appt. | - | 38.09m2 | 0-RDC | Disponible | 169 900€ | Voir |
| Voir | Disponible | 176 900€ | B12 | Appt. | - | 36.26m2 | 1er | Disponible | 176 900€ | Voir |
| Voir | Disponible | 176 900€ | B13 | Appt. | - | 37.66m2 | 1er | Disponible | 176 900€ | Voir |
| Voir | Disponible | 169 900€ | B14 | Appt. | - | 38.09m2 | 1er | Disponible | 169 900€ | Voir |
| Voir | Disponible | 169 900€ | B15 | Appt. | - | 38.09m2 | 1er | Disponible | 169 900€ | Voir |
| Voir | Disponible | 173 900€ | A04 | Appt. | - | 38.09m2 | 0-RDC | Disponible | 173 900€ | Voir |
| Voir | Disponible | 173 900€ | A05 | Appt. | - | 38.09m2 | 0-RDC | Disponible | 173 900€ | Voir |
| Voir | Disponible | 173 900€ | A06 | Appt. | - | 38.09m2 | 0-RDC | Disponible | 173 900€ | Voir |
| Voir | Disponible | 173 900€ | A07 | Appt. | - | 38.09m2 | 0-RDC | Disponible | 173 900€ | Voir |
| Voir | Disponible | 173 900€ | B02 | Appt. | - | 36.26m2 | 0-RDC | Disponible | 173 900€ | Voir |
| Voir | Disponible | 173 900€ | B03 | Appt. | - | 37.66m2 | 1er | Disponible | 173 900€ | Voir |
| Voir | Disponible | 173 900€ | B08 | Appt. | - | 38.16m2 | 0-RDC | Disponible | 173 900€ | Voir |
| Voir | Disponible | 179 900€ | B22 | Appt. | - | 36.26m2 | 2ème | Disponible | 179 900€ | Voir |
| Voir | Disponible | 179 900€ | A13 | Appt. | - | 37.66m2 | 1er | Disponible | 179 900€ | Voir |
| Voir | Disponible | 176 900€ | A14 | Appt. | - | 38.09m2 | 1er | Disponible | 176 900€ | Voir |
| Voir | Disponible | 176 900€ | A15 | Appt. | - | 38.09m2 | 1er | Disponible | 176 900€ | Voir |
| Voir | Disponible | 169 900€ | B17 | Appt. | - | 38.09m2 | 1er | Disponible | 169 900€ | Voir |
| Voir | Disponible | 254 900€ | B28 duplex | Appt. | - | 67.82m2 | 2ème | Disponible | 254 900€ | Voir |
| Voir | Disponible | 169 900€ | B16 | Appt. | - | 38.09m2 | 1er | Disponible | 169 900€ | Voir |
| Voir | Disponible | 178 900€ | A02 | Appt. | - | 36.26m2 | 0-RDC | Disponible | 178 900€ | Voir |
| Voir | Disponible | 178 900€ | A03 | Appt. | - | 37.66m2 | 0-RDC | Disponible | 178 900€ | Voir |
| Voir | Disponible | 178 900€ | A08 | Appt. | - | 38.16m2 | 0-RDC | Disponible | 178 900€ | Voir |
| Voir | Disponible | 176 900€ | B18 | Appt. | - | 38.16m2 | 1er | Disponible | 176 900€ | Voir |
| Voir | Disponible | 179 900€ | A12 | Appt. | - | 36.26m2 | 1er | Disponible | 179 900€ | Voir |
| Voir | Disponible | 179 900€ | A22 | Appt. | - | 36.26m2 | 2ème | Disponible | 179 900€ | Voir |
| Voir | Disponible | 176 900€ | A16 | Appt. | - | 38.09m2 | 1er | Disponible | 176 900€ | Voir |
| Voir | Disponible | 179 900€ | A18 | Appt. | - | 38.16m2 | 2ème | Disponible | 179 900€ | Voir |
| Voir | Disponible | 312 900€ | B21 | Appt. | - | 78.82m2 | 2ème | Disponible | 312 900€ | Voir |
| Voir | Disponible | 249 900€ | B25 duplex | Appt. | - | 68.72m2 | 2ème | Disponible | 249 900€ | Voir |
| Voir | Disponible | 254 900€ | B23 duplex | Appt. | - | 8.16m2 | 2ème | Disponible | 254 900€ | Voir |
| Voir | Disponible | 249 900€ | A27 duplex | Appt. | - | 68.72m2 | 2ème | Disponible | 249 900€ | Voir |
| Voir | Disponible | 259 900€ | A23 duplex | Appt. | - | 67.84m2 | 2ème | Disponible | 259 900€ | Voir |
| Voir | Disponible | 249 900€ | A26 duplex | Appt. | - | 68.72m2 | 2ème | Disponible | 249 900€ | Voir |
| Voir | Disponible | 249 900€ | B26 duplex | Appt. | - | 68.72m2 | 2ème | Disponible | 249 900€ | Voir |
| Voir | Disponible | 244 900€ | B24 duplex | Appt. | - | 68.72m2 Le bon plan | 2ème | Disponible | 244 900€ | Voir |
| Voir | Disponible | 249 900€ | A24 duplex | Appt. | - | 68.72m2 | 2ème | Disponible | 249 900€ | Voir |
| Voir | Disponible | 249 900€ | A25 duplex | Appt. | - | 68.72m2 | 2ème | Disponible | 249 900€ | Voir |
| Voir | Disponible | 302 900€ | B01 | Appt. | - | 78.82m2 | 0-RDC | Disponible | 302 900€ | Voir |
| Voir | Disponible | 308 900€ | B11 | Appt. | - | 78.82m2 | 1er | Disponible | 308 900€ | Voir |
| Voir | Disponible | 309 900€ | A01 | Appt. | - | 78.82m2 | 0-RDC | Disponible | 309 900€ | Voir |
| Voir | Disponible | 249 900€ | B27 duplex | Appt. | - | 68.72m2 | 2ème | Disponible | 249 900€ | Voir |
| Voir | Disponible | 315 900€ | A11 | Appt. | - | 78.82m2 | 1er | Disponible | 315 900€ | Voir |
| Voir | Disponible | 319 900€ | A21 | Appt. | - | 78.82m2 | 2ème | Disponible | 319 900€ | Voir |
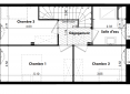
| Voir | Optionné | 329 900€ | M05 | Appt. | - | 82.24m2 | 0-RDC | Optionné Mais pas encore vendu 😉 | 329 900€ | Voir |
| Voir | Optionné | 359 900€ | M06 | Appt. | - | 82.24m2 | 0-RDC | Optionné Mais pas encore vendu 😉 | 359 900€ | Voir |
| Voir | Disponible | 359 900€ | M08 | Appt. | - | 82.24m2 | 0-RDC | Disponible | 359 900€ | Voir |
| Voir | Optionné | 379 900€ | M04 | Appt. | - | 93.84m2 | 0-RDC | Optionné Mais pas encore vendu 😉 | 379 900€ | Voir |

