Prix
231 000€  (TVA 20%)
203 088€  (TVA 5.5%)
Type
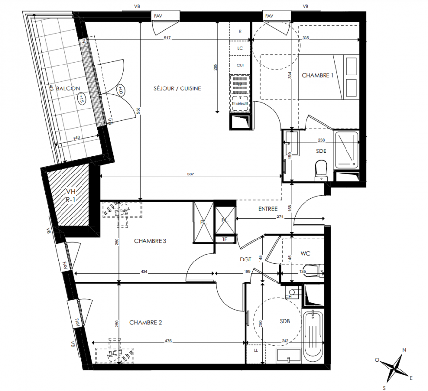
Appt. au 4ème
Pièces
T2
Surface
40.97 m²
Exposition
Sud
Ville
Villeneuve-Saint-Georges (94190)
Livraison
1er trimestre 2027
Informations
01 81 80 39 10

Présentation du programme "Seinographic"

Devenez propriétaire de votre appartement neuf
Cette nouvelle adresse à Villeneuve-Saint-Georges réunit les atouts d’un placement à fort potentiel. La résidence se situe à 5 min* à pied de la gare de RER D Villeneuve Triage, permettant de rejoindre Paris gare de Lyon en 16 min**, Châtelet-les Halles en 21 min**. Les grands bassins d’emplois de l’aéroport d’Orly et de Rungis sont accessibles en une vingtaine de minutes, tout comme les grands pôles universitaires, hospitaliers et administratifs de Créteil. En pleine restructuration, le quartier Triage voit se métamorphoser l’avenue de Choisy en une voie embellie, verdoyante reliant les petites rues à l’esprit village et les bords de Seine réaménagés. L’amélioration du cadre de vie s’accompagne de nouveaux équipements, dont un groupe scolaire et une crèche. Une attractivité grandissante synonyme de forte demande locative et de belles perspectives de valorisation. * Source : Google Maps** Source : www.ratp.fr

Autres logements T2 du programme "Seinographic"

Disponibilité Prix Genre Pièces Surface Étage
Voir
Disponible
245 000€ Appt. T2 40.97m2 6ème
DO NOT CLICK