Prix
330 000€
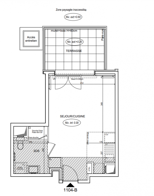
Type
Appt. au 1er
Pièces
Studio
Surface
30.04 m²
Exposition
Nord
Ville
Joinville-le-Pont (94340)
Livraison
3ème trimestre 2026
Informations
01 81 80 39 10

Présentation du programme "Haute Rive"

En plein cœur de Joinville-le-Pont, goûtez au privilège d’une résidence raffinée au calme des bords de la Marne. Au pied de la mairie, à proximité immédiate des commerces, des équipements de loisirs et du RER A, cette nouvelle réalisation Vianova séduit par son architecture délicate, tout en courbes et en transparence, faisant la part belle aux balcons et aux terrasses surplombant la Marne.

Du studio compact au vaste 5 pièces duplex en attique, découvrez une sélection d’appartements haut de gamme, pour vivre ou investir aux portes de Paris.

Autres logements Studio du programme "Haute Rive"

Disponibilité Prix Genre Pièces Surface Étage
Voir
Disponible
320 000€ Appt. Studio 33.32m2 1er
DO NOT CLICK