Prix
378 000€  (TVA 20%)
346 500€  (TVA 10%)
Type
Appt. au 11ème
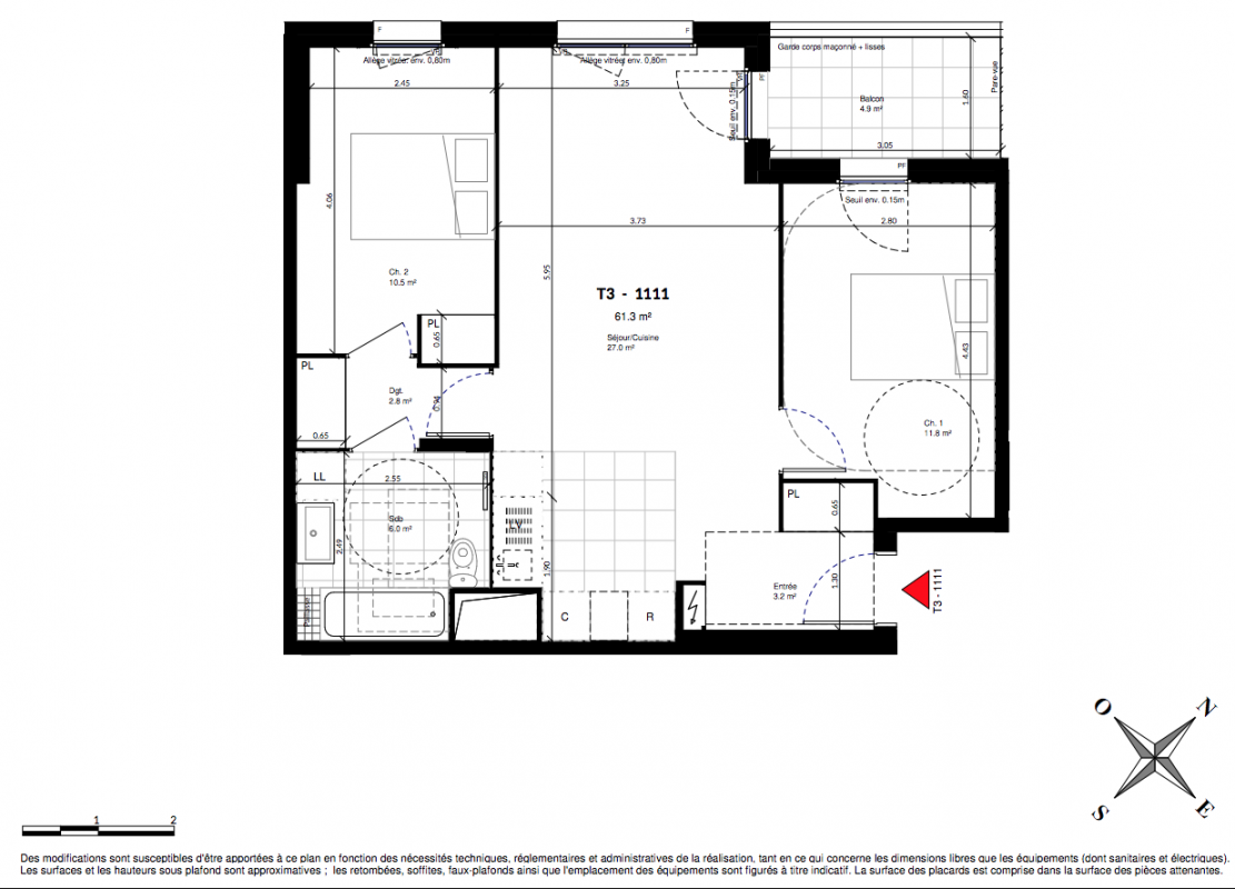
Pièces
T3
Surface
61 m²
Exposition
Nord-Ouest
Ville
Ivry-sur-Seine (94200)
Livraison
4ème trimestre 2026
Informations
01 81 80 39 10

Présentation du programme "RIVES DE SEINE"

Devenez propriétaire d'un appartement neuf d'exception, DU STUDIO AU 5 PIECES DUPLEX, en bords de Seine, en plein coeur d'un Parc boisé et proche du RER et du Métro.A Ivry-sur-Seine, découvrez RIVES DE SEINE, un programme neuf avec de nouvelles résidences aux exceptionnels jardins suspendus pour habiter en bords de Seine au coeur d'un magnifique futur parc boisé. Un programme neuf proche du RER C (Ivry-sur-Seine), des métros ligne 8 (École Vétérinaire de Maisons-Alfort) et ligne 7 (Mairie d'Ivry) et à proximité immédiate du futur arrêt T Zen 5 (Maurice Gunsbourg), situé au coeur de l'emblématique quartier Ivry-Confluences, et ses nombreux commerces, équipements et services actuels et à venir. Les résidences RIVES DE SEINE vous proposent des appartements neufs d'exception du studio au 5 pièces duplex aux généreux espaces extérieurs privatifs et pour certains des vues dégagées sur le Parc, la Seine et Paris. Un emplacement exceptionnel à Ivry-sur-Seine pour devenir propriétaire d'un logement neuf aux portes de Paris. Pour toutes informations complémentaires, prenez contact avec nous !

Autres logements T3 du programme "RIVES DE SEINE"

Pas de logements disponibles
DO NOT CLICK