Prix
351 469€
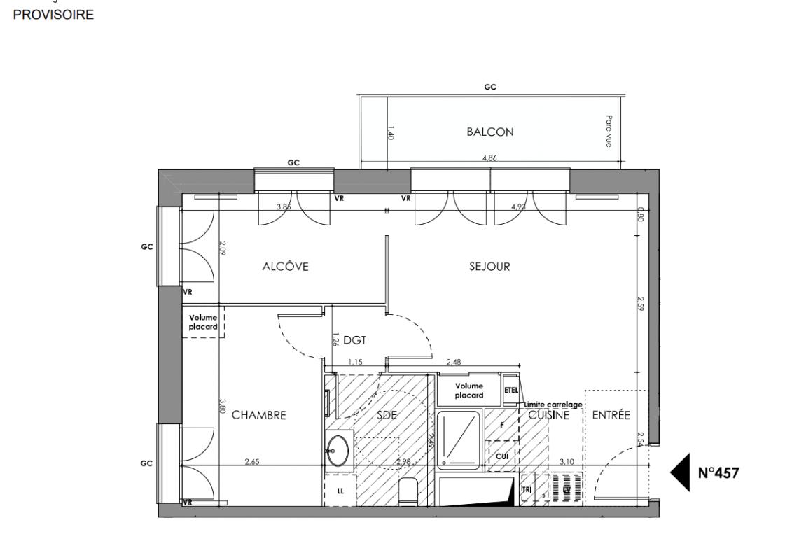
Type
Appt. au 5ème
Pièces
T2
Surface
50.28 m²
Exposition
Nord
Ville
Cachan (94230)
Livraison
4ème trimestre 2027
Informations
01 81 80 39 10

Présentation du programme "PROMENADE CAMPUS"

Cette nouvelle adresse au cœur du campus historique de l'ENS, vous propose une résidence unique à l'architecture de qualité dont l'utilisation du bois en façade. Un riche projet paysager est également déployé pour permettre une parfaite intégration du projet dans son environnement existant. Les appartements neufs, du studio au 5 pièces sont pour la plupart prolongés par un espace extérieur privatif : balcon, terrase ou jardin. Eligible à la TVA réduite, cette résidence neuve est également disponible avec la solution Vianova Access, permettant de devenir propriétaire sans apport, et avec des mensualités proches de celles d’un loyer.

Autres logements T2 du programme "PROMENADE CAMPUS"

Disponibilité Prix Genre Pièces Surface Étage
Voir
Disponible
348 057€ Appt. T2 50.28m2 4ème
DO NOT CLICK