310 000€ (TVA 20%)
284 167€ (TVA 10%)
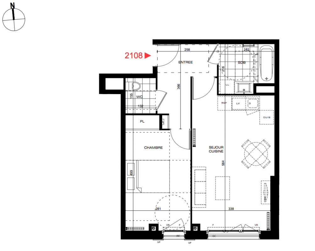
Appt. au 1er
T2
47 m²
Sud
La Frette-sur-Seine (95530)
1er trimestre 2026
01 81 80 39 10
Présentation du programme "VILLA DAUBIGNY"
Au sein d'une commune dynamique du Val d'Oise, à l'esprit village et bordée par la Seine, la réalisation est idéalement située en cour de ville. Elle est à proximité immédiate de la gare de La Frette - Montigny (Ligne J)vous permettant de rejoindre Paris Saint-Lazare en 21min*. Des commerces se trouvent à deux pas du projet garantissant un quotidien des plus confortables. Côté écoles, l'ensemble des infrastructures scolaires sont à moins de 2km. DES APPARTEMENTS NEUFS DE STANDING La réalisation à l'architecture traditionnelle s'intègre parfaitement dans son environnement pavillonnaire. Elle se compose de quelques appartements neufs, du studio au 4 pièces. Ils sont prolongés pour la plupart par de beaux espaces extérieurs, balcons, jardins privatifs, et même par de belles terrasses " plein ciel " pour certains, assurant un cadre de vie privilégié. N'attendez pas, renseignez-vous dès à présent ! Pour habiter : profitez des conditions très attractives du Prêt à Taux zéro. (Prix à titre indicatif et non contractuels susceptibles d'évoluer jusqu'à la date du lancement.) Pour toutes informations complémentaires, prenez contact avec nous !