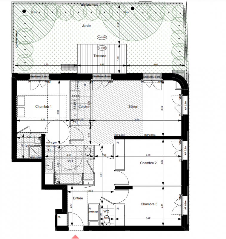
399 000€
Appt. au 0-RDC
T4
76 m²
Est
Noisy-le-Grand (93160)
1er trimestre 2026
01 81 80 39 10
Présentation du programme "NATURA"
Au sein du quartier des Bas-Heurts, une nouvelle vie se dessine dans une résidence moderne et inspirée qui fait la part belle aux espaces verts.Entre la rue des Bas-Heurts et la rue des Aulnettes, NATURA se démarque par son architecture novatrice et s’intègre de manière naturelle à son environnement direct. L’ensemble de la résidence se distingue par son architecture qui met en scène les différents matériaux qui alternent entre le bois et les enduits clairs. Un rythme architectural qui donne le ton et se remarque. Avec son îlot central végétalisé, la résidence met en lumière avec brio des espaces privés et communs extérieurs. NATURA rassemble une nouvelle génération d’habitat urbain : l’intimité d’un confort intérieur sublimé par le privilège d’espaces de vie en extérieur.