Prix
388 661€  (TVA 20%)
341 698€  (TVA 5.5%)
Type
Appt. au 3ème
Pièces
T4
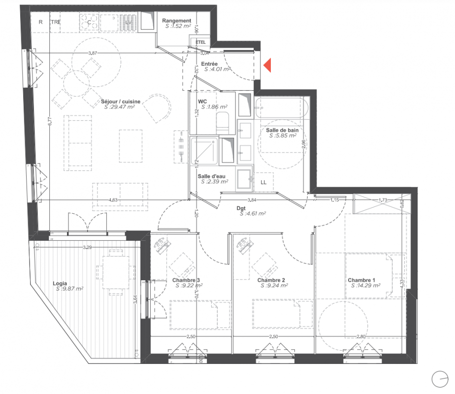
Surface
82.46 m²
Exposition
-
Ville
Bobigny (93000)
Livraison
4ème trimestre 2026
Informations
01 81 80 39 10

Présentation du programme "LES JARDINS ROSTAND"

Idéal pour habiter ou investir - Profitez de TVA réduite à 5,5% pour devenir propriétaire à Bobigny - Résidence éligible au dispositif Pinel et aux frais de notaire réduits.
« SOYEZ LES PREMIERS ET PROFITEZ DU MEILLEUR CHOIX AU MEILLEUR PRIX » Découvrez en Avant-première cette nouvelle résidence au charme intemporel située au coeur du quartier privilégié Jean Rostand, au pied du tram T1 « Auguste Delaune, et à moins de 10 min à pied du métro ligne 5 « Bobigny-Pablo Picasso ». Les appartements aux surfaces intérieures généreuses sont déclinés du studio au 5 pièces duplex répartis sur 3 bâtiments très distincts. Ils offrent de beaux espaces extérieurs privatifs (terrasses plein ciel, jardins privatifs ou loggias) ouverts pour la majorité sur l'espace paysager arboré en coeur d'ilot.
Vous profitez d'un cadre de vie idéal dans le meilleur quartier de la ville : proche des écoles, et des activités sportives (Parc Départemental de la Bergère et son parcours sportif, stade A. Delaune, centre nautique Jacques Brel, piste cyclable longeant le canal de l'Ourcq, promenade Jean Rostand), et grâce à la proximité des transports vous rejoignez Paris gare de l'Est en 20 min par le métro.
Cette nouvelle réalisation de standing propose des appartements multi-orientés avec de vastes bais vitrées pour profiter de la lumière naturelle, des prestations soignées, d'accès sécurisés entièrement sécurisés avec parking en sous-sol, et de performances énergétiques et environnementales (RT2012). Une réalisation Trianon Promotion
Profitez du meilleur choix au meilleur prix. Contactez notre conseiller au : 01 82 28 09 97

Autres logements T4 du programme "LES JARDINS ROSTAND"

Disponibilité Prix Genre Pièces Surface Étage
Voir
Disponible
394 348€ Appt. T4 82.47m2 4ème
DO NOT CLICK