281 000€
Appt. au 4ème
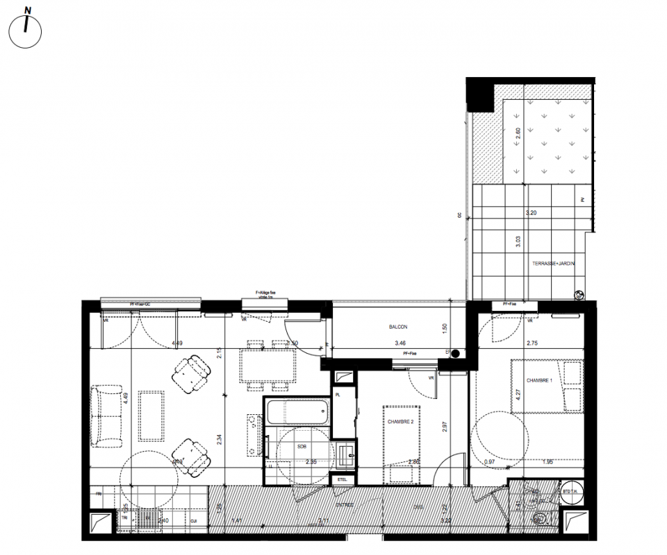
T3
64.96 m²
Nord
Meaux (77100)
3ème trimestre 2028
01 81 80 39 10
Présentation du programme "Square Foch"
Accéder à la maquette 3D de Square FochSur l’avenue du Maréchal Foch, à l’angle des rues Léon leRoyer et Paul Prunet, la résidence Square Foch intègreun ensemble venant moderniser l'adresse : salle de sport, workingcafé, hôtel 3 étoiles, espaces de coliving, commerces au pied du programme et crèche créent une véritable vie de quartier contribue à dessiner le nouveau visage du centre ville.La résidence a un style architectural moderne et épuré. Elle propose des appartements allant du studio au 5 pièces qui profitent d’une ouverture surl’extérieur avec balcon, jardin en rez-de-chaussée, ou terrasse plein ciel.Des villas sur le toit offrent des espaces exceptionnels. RESIDENCEPerformance énergétique : les logements répondront à la RE 2020Diversité des typologies pour favoriser une mixité des usagesExtérieur pour chaque logement : balcons de taille standard, larges terrasses (moyenne à 25m2, certaines > 75m2)1 à 2 place(s) de stationnement par appartementENVIRONNEMENTSquare Foch est idéalement située, notamment pour les familles, avec les écoles et le collège voisinA quelques pas du programmeServices de proximité => salle de sport, café Commerces du quotidien => boulangerie, supermarché, banqueRevêtement linoléum pour les séjours Carrelage pour les salles d’eau et les cuisines Salles de bain équipées d’un meuble vasqueavec sous-plan vasque avec tiroirs, un miroiret une réglette LED Sèche-serviette électrique Fenêtres et portes-fenêtres en PVC, ouvrantes àla française, oscillo-battantes avec parties fixes (double vitrage)Vitrage en verre granité ou translucide dansles salles d’eau Volets roulants PVC à commande manuelle• Porte anti-effraction, serrure 3 points A2P* Accès à l’entrée par vigik et vidéophoneBornes de recharge électriqueA 10 min à pied du "pôle Luxembourg" accueillant marché et commerces de bouche, médiathèque, IUT de MeauxA 10 min à pied de la plage de Meaux proposant des activités et sports nautiquesA 10 min à pied du parc du Pâtis pour les balades, jogging, moment de détente en familleA 17 min à pied de la gare de Meaux / 6min en vélo
Autres logements T3 du programme "Square Foch"
| Disponibilité | Prix | No | Genre | Pièces | Surface | Étage | Disponibilité | Prix | ||
|---|---|---|---|---|---|---|---|---|---|---|
| Voir | Disponible | 295 000€ | E1101 | Appt. | T3 | 70.02m2 | 1er | Disponible | 295 000€ | Voir |
| Voir | Disponible | 279 000€ | E1301 | Appt. | T3 | 70.02m2 Le bon plan | 3ème | Disponible | 279 000€ | Voir |
| Voir | Disponible | 309 000€ | E1401 | Appt. | T3 | 54.15m2 | 4ème | Disponible | 309 000€ | Voir |
| Voir | Disponible | 345 000€ | B2204 | Appt. | T3 | 73.51m2 | 2ème | Disponible | 345 000€ | Voir |
| Voir | Disponible | 321 000€ | B2402 | Appt. | T3 | 65.23m2 | 4ème | Disponible | 321 000€ | Voir |