885 000€
Appt. au 3ème
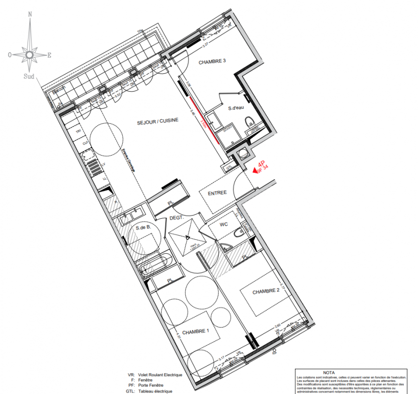
T4
87.73 m²
Nord-Ouest
Puteaux (92800)
1er trimestre 2028
01 81 80 39 10
Présentation du programme "Programme neuf Puteaux (92800)"
Démarrage des travaux à PUTEAUX ! Appartements neufs de standing du 2 au 6 pièces ! Venez découvrir l’EcoQuartier des Bergères, situé à 500 m* de la gare SNCF, à 10 min à pied du centre-ville de Puteaux et à 5 minutes de Paris La Défense et du shopping à Westfield les 4 Temps. La résidence ‘’Programme neuf Puteaux (92800)’’, ce sont des appartements neufs de standing du 2 au 6 pièces duplex, avec des hauteurs sous plafond de 2,8 m, des balcons et/ou terrasses jusqu’à 63 m², des vues dégagées sur le parc arboré, son superbe plan d’eau, le tout niché dans un quartier prisé, serein et animé par des commerces, les transports en commun, écoles, crèches qui viendront faciliter votre quotidien. D’inspiration haussmannienne avec ses arches, socle en pierre massive, moulures et toits en tuile, le projet déploie une architecture soignée à l’image de la ville.Les appartements déclinent l’excellence dans tous leurs équipements : parquet ou carrelage, isolation thermique et acoustique renforcée avec la gestion centralisée du chauffage, volets roulants électriques, salle de bains aménagée… Parkings en sous-sol Contactez vite un de nos conseillers pour découvrir tous nos appartements neufs disponibles à PUTEAUX et profitez de notre offre exclusive ! Une co-promotion Quanim / Marignan
Autres logements T4 du programme "Programme neuf Puteaux (92800)"
| Disponibilité | Prix | No | Genre | Pièces | Surface | Étage | Disponibilité | Prix | ||
|---|---|---|---|---|---|---|---|---|---|---|
| Voir | Disponible | 1 039 000€ | C14 | Appt. | T4 | 115.98m2 | 1er | Disponible | 1 039 000€ | Voir |
| Voir | Disponible | 830 000€ | C23 | Appt. | T4 | 87.39m2 | 2ème | Disponible | 830 000€ | Voir |
| Voir | Disponible | 812 000€ | C32 | Appt. | T4 | 83.82m2 | 3ème | Disponible | 812 000€ | Voir |
| Voir | Disponible | 733 000€ | C34 | Appt. | T4 | 72.41m2 | 3ème | Disponible | 733 000€ | Voir |
| Voir | Disponible | 1 060 000€ | C41 | Appt. | T4 | 104.65m2 | 4ème | Disponible | 1 060 000€ | Voir |
| Voir | Disponible | 1 208 000€ | D14 | Appt. | T4 | 130.47m2 | 1er | Disponible | 1 208 000€ | Voir |
| Voir | Disponible | 743 100€ | A31 | Appt. | T4 | 91.36m2 | 3ème | Disponible | 743 100€ | Voir |
| Voir | Disponible | 844 400€ | B42 | Appt. | T4 | 103.53m2 | 4ème | Disponible | 844 400€ | Voir |
| Voir | Disponible | 730 000€ | C24 | Appt. | T4 | 72.72m2 | 2ème | Disponible | 730 000€ | Voir |
| Voir | Disponible | 873 600€ | E14 | Appt. | T4 | 114.02m2 | 1er | Disponible | 873 600€ | Voir |