Prix
925 000€
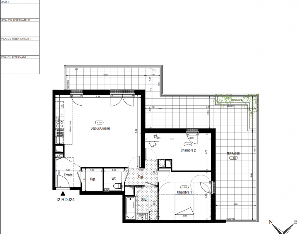
Type
Appt. au 0-RDC
Pièces
T3
Surface
76.53 m²
Exposition
Est
Ville
Meudon (92190)
Livraison
1er trimestre 2027
Informations
01 81 80 39 10

Présentation du programme "Vue en Scène"

Vivez l’exception au cœur de Meudon Bellevue
Un placement patrimonial d’excellence. Stratégique, il conjugue la notoriété des Hauts-de-Seine, la proximité de Paris, la qualité de vie de Meudon et l’agrément d’une adresse citadine, proche de tout. Il s’inscrit dans l’un des plus beaux cadres d’Île-de-France, offrant des vues exceptionnelles, la douceur d’une ambiance naturelle, et la proximité des commerces et des transports. Programme phare de la ville, sur un site emblématique par son passé et ses atouts, il constitue sans conteste une valeur sûre, solide et pérenne, pour enrichir votre portefeuille immobilier.

Autres logements T3 du programme "Vue en Scène"

Disponibilité Prix Genre Pièces Surface Étage
Voir
Disponible
844 000€ Appt. T3 70.09m2 0-RDC
DO NOT CLICK