Prix
449 000€
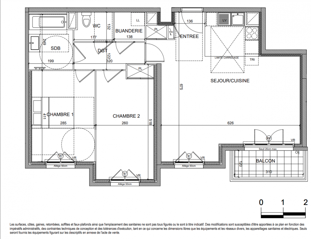
Type
Appt. au 0-RDC
Pièces
T3
Surface
73.05 m²
Exposition
Est
Ville
Clamart (92140)
Livraison
3ème trimestre 2026
Informations
01 81 80 39 10

Présentation du programme "L'Égérie"

 Grand Canal en hommage à la voie navigable qui le traverse, alimentant un bassin d’agrément et des fontaines à jets. Ce quartier nouvelle génération, intimement lié à l'eau, se distingue par son caractère singulier en tant que lieu de vie et de contemplation.S'ajoutant à cette atmosphère unique, la résidence L'Égérie et ses 46 nouveaux appartements neufs, du studio au 5 pièces, viennent enrichir l'offre résidentielle. Les logements sont prolongés pour la plupart de balcons, terrasses ou jardins privatifs offrant des espaces extérieurs pour profiter pleinement de l'environnement verdoyant.Avec une multitude d’arbres et de plantes, L'ÉGÉRIE devient un véritable refuge de biodiversité.Au cœur de cette nature florissante, la mixité des usages est préservée, accueillant des résidences étudiantes, des logements pour seniors, des habitations neuves, des écoles, des commerces, des boutiques et des restaurants. Ainsi, L'Égérie offre une vraie vie de quartier au pied de chez vous, avec une diversité résidentielle répondant aux besoins de chacun. 

Autres logements T3 du programme "L'Égérie"

Disponibilité Prix Genre Pièces Surface Étage
Voir
Disponible
460 000€ Appt. T3 71.63m2 0-RDC
DO NOT CLICK