Prix
555 000€
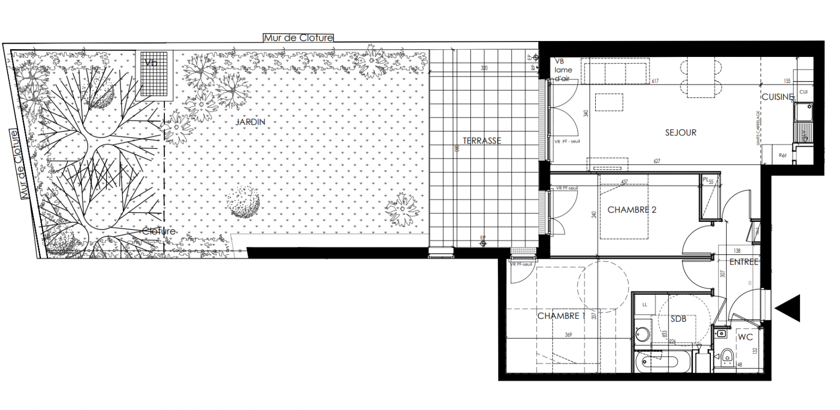
Type
Appt. au 0-RDC
Pièces
-
Surface
63.8 m²
Exposition
Sud-Ouest
Ville
Chaville (92370)
Livraison
2ème trimestre 2028
Informations
01 81 80 39 10

Présentation du programme "Coeur Chaville"

A deux pas de la mairie et de la place du marché, découvrez votre nouvelle résidence « Cœur Chaville », une réalisation intimiste à l’architecture élégante et durable, composée d’appartements lumineux du studio au 5 pièces. Tous les logements disposent d’un espace extérieur : terrasses, balcons, jardins privatifs en rez-de-chaussée et rooftop. Pensés avec soin, ils bénéficient de prestations de grande qualité : parquet massif, menuiseries extérieures en aluminium, WC suspendus, volets roulants électriques et des caves pour tous les logements. Chaville est une commune résolument verte, avec une surface boisée de 156 hectares qui couvre la moitié de celle-ci. Entourée par les forêts domaniales de Meudon et de Fausses-Reposes, elle représente un patrimoine naturel idéal pour les Chavillois. 

Autres logements - du programme "Coeur Chaville"

Disponibilité Prix Genre Pièces Surface Étage
Voir
Disponible
385 000€ Appt. - 44.31m2 4ème
Voir
Disponible
868 000€ Appt. - 106.23m2 0-RDC
DO NOT CLICK