Prix
163 000€
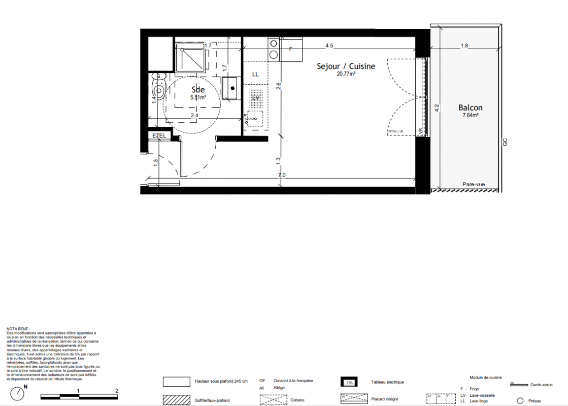
Type
Appt. au 15ème
Pièces
Studio
Surface
26 m²
Exposition
Nord
Ville
Vigneux-sur-Seine (91270)
Livraison
3ème trimestre 2026
Informations
01 81 80 39 10

Présentation du programme "L'APART'É"

Autres logements Studio du programme "L'APART'É"

Disponibilité Prix Genre Pièces Surface Étage
Voir
Disponible
156 750€ Appt. Studio 26m2 11ème
DO NOT CLICK