Ce lot n’est plus disponible chez VIANOVA ou est vendu.

Vous pouvez revenir dans 24h pour vérifier le stock à jour ou contacter un conseiller Vianova pour vérifier le stock en direct.
Vous pouvez également continuer votre recherche sur notre site « ici ».

Prix
389 005€  (TVA 20%)
342 000€  (TVA 5.5%)
Type
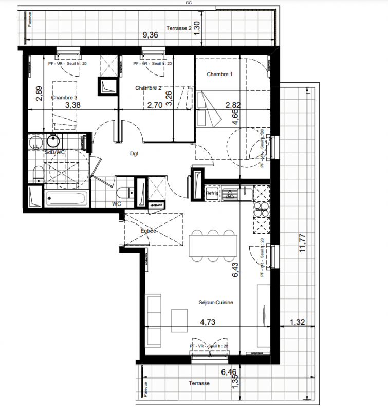
Appt. au 4ème
Pièces
T4
Surface
75.55 m²
Exposition
-
Ville
Brunoy (91800)
Livraison
4ème trimestre 2027
Informations
01 81 80 39 10

Présentation du programme "Programme neuf Brunoy (91800)"

Découvrez votre nouvelle résidence "Programme neuf Brunoy (91800)", située à seulement 25 kilomètres de Paris, dans un environnement résidentiel calme et verdoyant, en bordure de l'Yerres.

Idéalement située, la ville de Brunoy dispose d'infrastructures essentielles au quotidien (établissements médicaux, équipements sportifs, théâtre, médiathèque et espaces culturels), ainsi que des établissements scolaires de la maternelle au lycée. Son accessibilité est assurée par la ligne D du RER, un réseau de bus dense, ainsi qu'un accès rapide à l'A6 et à la N104. Programme neuf Brunoy (91800) dispose notamment d'un arrêt de bus à moins de 200 m, permettant de rejoindre la gare RER D de Brunoy en 10 minutes.

Répartis sur 2 bâtiments à taille humaine, la résidence dispose de 66 logements, du studio au 4 pièces, chacun offrant des aménagements optimisés qui maximisent la luminosité et la sensation d'espace. Tous les appartements disposent d'un espace extérieur privatif (balcon, terrasse ou jardin), offrant pour les derniers étages des vues dégagées sur la vallée de l'Yerres. Côté route de Brie, l'alignement de chênes remarquables vient renforcer la tranquillité des habitants et s'intègre parfaitement au jardin fleuri et arboré en coeur d'îlot qui vient agrémenter l'intimité et le confort du lieu.

La résidence propose une architecture moderne élégante et s'intègre harmonieusement avec la partie habitation pavillonnaire de la route de Brie, avec l'usage du bois et de teintes naturelles et des lignes en adéquation avec l'architecture environnante.

Prenez rendez-vous dès aujourd'hui pour découvrir tout ce que notre nouvelle résidence immobilière a à vous offrir. Ne manquez pas également l'opportunité de bénéficier d'une TVA réduite à 5,5 %, sous réserve de certaines conditions, ainsi que du nouveau prêt à taux zéro.

Autres logements T4 du programme "Programme neuf Brunoy (91800)"

Pas de logements disponibles
DO NOT CLICK