154 200€
Appt. au 2ème
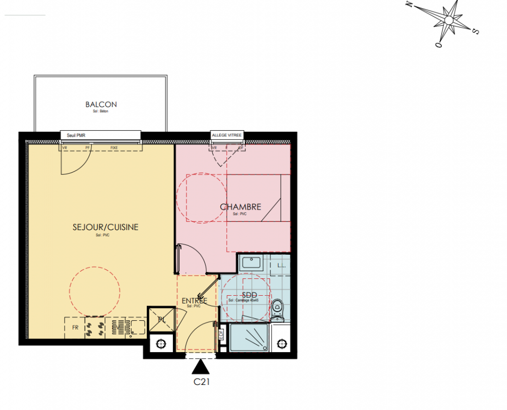
T2
45.15 m²
-
Laventie (62840)
4ème trimestre 2027
01 81 80 39 10
Présentation du programme "Les Balcons de Jade - LAVENTIE"
Découvrez une résidence élégante et moderne au coeur de Laventie : Les Balcons de Jade.
Du 2 au 4 pièces, ces appartements sont pensés pour offrir confort, luminosité et fonctionnalité. Les séjours sont spacieux avec de larges ouvertures et chaque logement se prolonge par un balcon, une terrasse ou un jardin privatif.
Conformes à la réglementation RE2020, ils assurent une excellente performance thermique en toute saison.
La résidence garantit bien-être et confort grâce à sa sécurité renforcée avec vidéophone, son ascenseur, son hall d'entrée soigné, son local vélos, ses aménagements paysagers de qualité et ses stationnements privatifs.
Contactez-nous dès aujourd'hui pour découvrir votre futur appartement.
Une copromotion Nacarat et KAHILI