Prix
208 000€  (TVA 20%)
182 867€  (TVA 5.5%)
Type
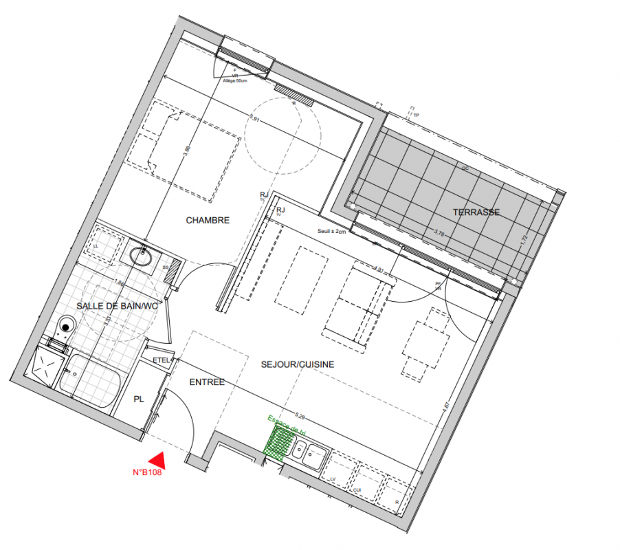
Appt. au 1er
Pièces
T2
Surface
45.43 m²
Exposition
Nord
Ville
Nancy (54100)
Livraison
4ème trimestre 2027
Informations
01 81 80 39 10

Présentation du programme "DOMAINE DE BUTHEGNEMONT"

NANCY : DÉCOUVREZ EN EXCLUSIVITÉ UN EMPLACEMENT D'EXCEPTION QUARTIER BUTHEGNEMONT !Située dans le quartier Buthégnémont, dans un cadre privilégié, découvrez le DOMAINE DE BUTHEGNEMEONT, une nouvelle résidence d'appartements neufs à Nancy.
Profitez d'un nouveau cadre de vie paisible et verdoyant relié à toutes les commodités. En lisière d'un espace boisé classé, laissez-vous séduire par nos appartements du 1 au 4 pièces qui disposeront tous de jardins ou de belles terrasses avec vues dégagées. Cette nouvelle adresse de qualité dispose ainsi de tous les atouts d'une vie urbaine connectée à la nature.
Envie d'habiter ici ? Sous conditions de ressources et d'éligibilité, bénéficiez de la TVA RÉDUITE à 5.5% et du PRET A TAUX ZÉRO 0%, un vrai coup de pouce pour acheter !Prix affichés en TVA réduite à 5.5%.

Autres logements T2 du programme "DOMAINE DE BUTHEGNEMONT"

Disponibilité Prix Genre Pièces Surface Étage
Voir
Disponible
200 000€ Appt. T2 44.93m2 1er
Voir
Disponible
203 000€ Appt. T2 44.93m2 2ème
Voir
Disponible
189 000€ Appt. T2 38.72m2 3ème
DO NOT CLICK