Prix
314 000€
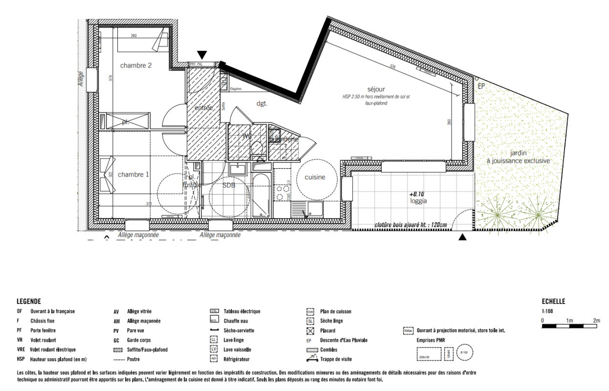
314 000€
Type
Appt. au 0-RDC
Appt. au 0-RDC
Pièces
T3
T3
Surface
66 m²
66 m²
Exposition
-
-
Ville
Saint-Malo (35400)
Saint-Malo (35400)
Livraison
3ème trimestre 2026
3ème trimestre 2026
Informations
01 81 80 39 10
01 81 80 39 10