Prix
235 000€
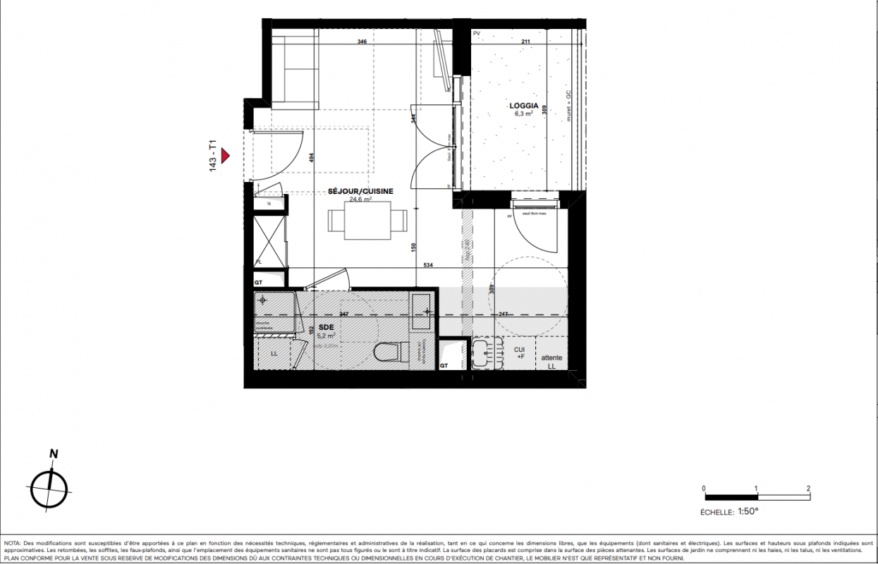
Type
Appt. au 3ème
Pièces
T3
Surface
58 m²
Exposition
Sud-Ouest
Ville
Villefranche-sur-Saône (69400)
Livraison
2ème trimestre 2027
Informations
01 81 80 39 10

Présentation du programme "Prélude"

A tout juste 30 minutes de Lyon, plongez dans l'atmosphère unique de la capitale du Beaujolais tout en profitant d'un cadre de vie verdoyant et dynamique. Ici, la modernité rencontre la nature : profitez d'un environnement verdoyant et plein de vie, tout en restant connecté à l'effervescence urbaine. Découvrez des logements spacieux et confortables du studio bien pensé au 5 pièces. Certains appartements ont une grande terrasse vous permettant de profiter des beaux jours. Pour votre confort, les appartements vous sont proposés avec un box privatif sécurisé en sous-sol. Au sein de la résidence, un coeur d'îlot végétalisé vous attend pour des moments de détente dans un cadre paisible. Venez découvrir un lieu où il fait bon vivre, une invitation au bien-être au quotidien. Pour toutes informations complémentaires, prenez contact avec nous !

Autres logements T3 du programme "Prélude"

Disponibilité Prix Genre Pièces Surface Étage
Voir
Disponible
249 000€ Appt. T3 65m2 2ème
Voir
Disponible
238 000€ Appt. T3 58m2 4ème
DO NOT CLICK