Prix
294 000€
Type
Appt. au 1er
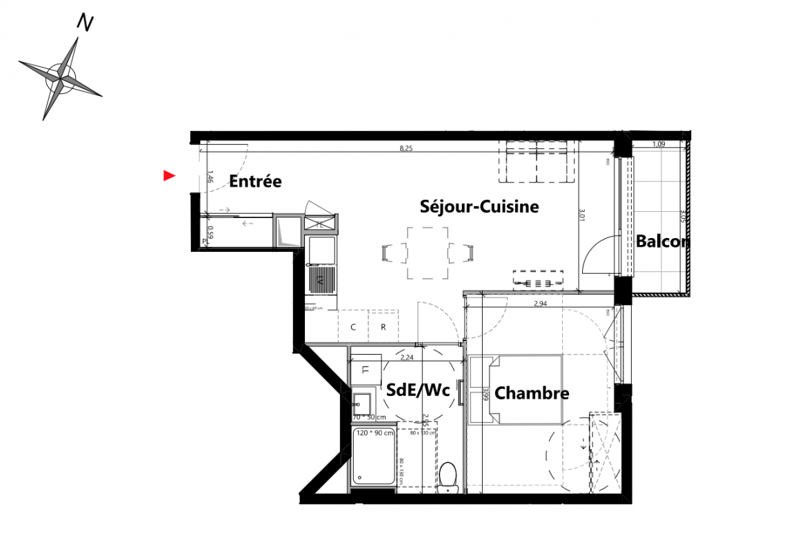
Pièces
T2
Surface
44.01 m²
Exposition
Est
Ville
La Tour-de-Salvagny (69890)
Livraison
3ème trimestre 2026
Informations
01 81 80 39 10

Présentation du programme "L'EVEIL"


Chape flottante acoustique
Parquet dans les entrées, séjours, dégagements et chambres
Terrasse, balcons et loggia revêtues de bois
Salle de bains ou salle d’eau principale et salle d’eau secondaire équipées d’un meuble vasque surmonté d’un miroir et d’un bandeau lumineux
Faïence et carrelage dans les pièces d’eau
Sèche-serviettes dans les salles de bains et salles d’eau
Chauffage (piloté par thermostat d’ambiance) et eau chaude par système de Pompe à Chaleur collective
Baies vitrées en bois Brise soleil orientable motorisé par télécommande sur l’ensemble des baies
Robinetterie thermostatique sur baignoire et douche
Hall d’entrée sécurisé par système Vigik®, digicode et système de visiophonie
Porte palière avec serrure de sûreté 5 points certifiée A2P1
Emplacement privatif dans le parking sécurisé en sous-sol
Locaux à vélos équipés, fermés à clef
Panneaux photovoltaïques permettant de couvrir une partie de la consommation électrique des parties communes de l’immeuble.

Autres logements T2 du programme "L'EVEIL"

Disponibilité Prix Genre Pièces Surface Étage
Voir
Disponible
298 000€ Appt. T2 45.56m2 1er
Voir
Disponible
296 000€ Appt. T2 44.01m2 1er
DO NOT CLICK