Prix
159 900€
159 900€
Type
Appt. au 0-RDC
Appt. au 0-RDC
Pièces
Studio
Studio
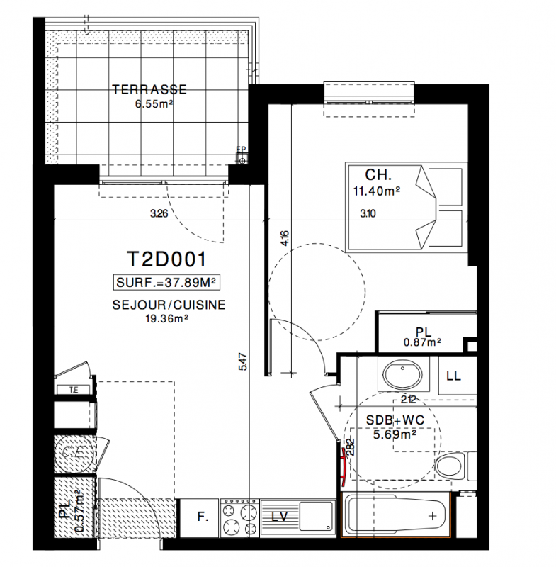
Surface
37.89 m²
37.89 m²
Exposition
-
-
Ville
Clermont-Ferrand (63000)
Clermont-Ferrand (63000)
Livraison
4ème trimestre 2024
4ème trimestre 2024
Informations
01 81 80 39 10
01 81 80 39 10
Présentation du programme "LE CLEMENTEL"
LOCALISATION
Clermont Auvergne, une Métropole dynamique de la région Auvergne Rhône Alpes, en pleine expansionTop 10 des métropoles les plus attractivesClermont-Ferrand se situe au cœur d’un couloir urbain de 600 000 habitants, qui relie Vichy, au nord, à Issoire, au sud.COMMODITÉS
A 15 min de la place de Jaude en voitureLa ligne de tramway A passe devant la résidence et traverse la ville du Nord au SudUne zone commerciale en plein développement juste en face de la résidencePROGRAMME
6 bâtimentsDu T2 au T4Locaux commerciaux en RDCVaste volet paysagé