101 700€
473 100€
- €
473 100€
- €
Type
Appt. au 3ème
Appt. au 3ème
Pièces
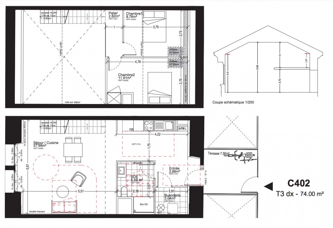
T3
T3
Surface
73.7 m²
73.7 m²
Exposition
Est
Est
Ville
Clermont-Ferrand (63000)
Clermont-Ferrand (63000)
Livraison
3ème trimestre 2027
3ème trimestre 2027
Informations
01 81 80 39 10
01 81 80 39 10
Présentation du programme "HOTEL DIEU"
Par son histoire, ses façades imposantes et sa situation en cœur de ville, l’Hôtel-Dieu est devenu une icône clermontoise et un des monuments patrimoniaux les plus emblématiques de la ville. Le site, à l’abandon depuis 2010, va être restauré par les équipes d’Histoire & Patrimoine.
Ainsi, 123 appartements, du T1 au T4 vont être créés. La cour intérieure, actuellement en friche sera restaurée en jardins.
Ce programme éligible au dispositif fiscal Monument Historique possède de nombreux atouts.