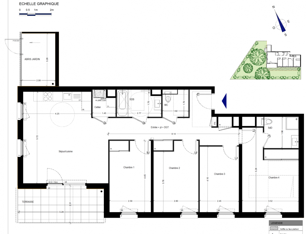
565 000€
Appt. au 0-RDC
T5
105.19 m²
-
Vétraz-Monthoux (74100)
1er trimestre 2027
01 81 80 39 10
Présentation du programme "Via Verde"
JEAN COEUR PROMOTION vous présente Via Verde, sa nouvelle résidence intime de 14 logements à Vetraz-Monthoux, sur la route du Chef-Lieu. Chaque appartement bénéficie de grandes loggias ou terrasses, de généreuses pièces de vie lumineuses et de prestations de qualité : cloisons stil épaisseur 7cm, WC suspendu, volets roulants motorisés, programme conforme à la règlementation énergétique RE2020.
Les futurs résidants de Via Verde seront idéalement situés à proximité de la Voie Verte qui mène à Genève, de l'école Primaire Françoise Dolto et des commerces de Vetraz-Monthoux.
Prix indiqués hors stationnement.
Renseignements et ventes auprès de Fiona LAMAMRA - Responsable des Partenariats - f.lamamra@sepimo.fr - 06 02 15 56 01

