Prix
328 000€
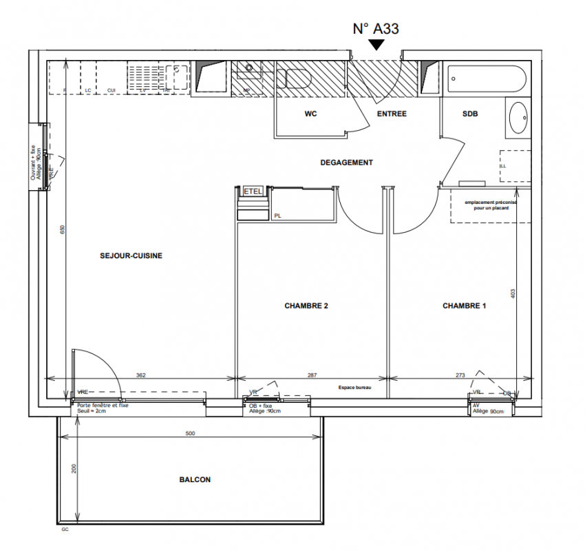
Type
Appt. au 3ème
Pièces
T3
Surface
58.35 m²
Exposition
-
Ville
La Roche-sur-Foron (74800)
Livraison
4ème trimestre 2027
Informations
01 81 80 39 10

Présentation du programme "OREADE"

Au cœur de la Haute-Savoie, entre les sommets alpins et le lac Léman, devenez propriétaire d’un bel appartement neuf du studio au 4 pièces. Au cœur de La Roche-sur-Foron, cette résidence contemporaine allie élégance architecturale et respect de l'environnement, à deux pas du centre historique médiéval. Avec ses espaces extérieurs généreux jusqu'à 98 m², son beau jardin en cœur d’îlot de 800 m² et sa certification RE 2020, elle répond aux exigences des investisseurs comme des résidants cherchant qualité de vie et placement pérenne.

Autres logements T3 du programme "OREADE"

Disponibilité Prix Genre Pièces Surface Étage
Voir
Disponible
323 000€ Appt. T3 58.34m2 2ème
DO NOT CLICK