Prix
480 200€
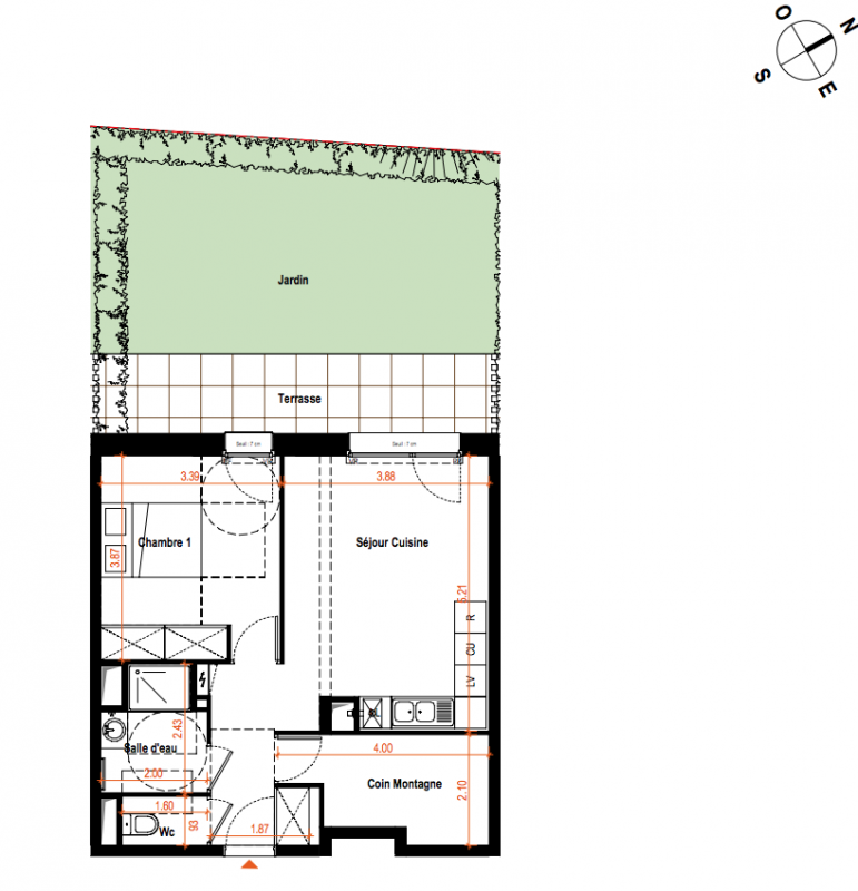
Type
Appt. au 0-RDC
Pièces
T2
Surface
50.56 m²
Exposition
-
Ville
Arâches-la-Frasse (74300)
Livraison
4ème trimestre 2026
Informations
01 81 80 39 10

Présentation du programme "La Soldanelle"

[TRAVAUX EN COURS - JUSQU'À 20 000 € DE REMISE + FRAIS DE NOTAIRE OFFERTS*]
PROPRIETAIRE AU BORD DES PISTES DE SKI

La Soldanelle, résidence intimiste de 15 logements seulement située à 10 minutes à pied du centre de la station village. Profitez d'un cadre de vie idéal par sa proximité immédiate des commerces, restaurants et pistes de ski. Vues d'exception sur la chaîne des Aravis, espaces extérieurs pour tous les appartements, grand local à ski privatif et place de stationnement en sous-sol pour tous, prestations haut de gamme (volets roulants, parquet contrecollé, cuisine équipée...). Logements du 2 au 5 pièces dont certains en duplex. Grâce au statut LMNP (Loueur en Meublé Non Professionnel), bénéficiez d'une fiscalité avantageuse pour votre investissement, plus d'informations auprès de nos conseillers. Inscrivez vous pour bénéficier d'un accompagnement sur mesure. Care Promotion Arc Alpin

Autres logements T2 du programme "La Soldanelle"

Disponibilité Prix Genre Pièces Surface Étage
Voir
Disponible
379 200€ Appt. T2 43.68m2 0-RDC
DO NOT CLICK