279 800€
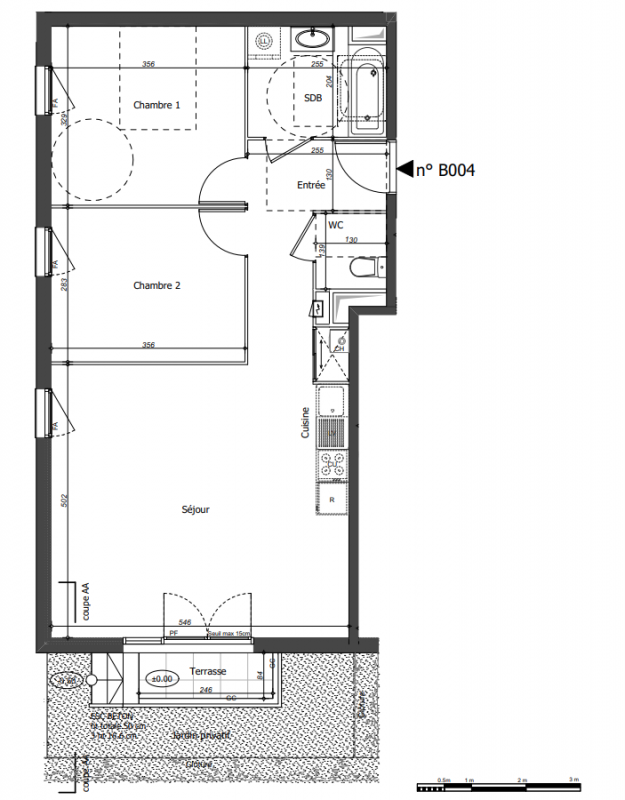
Appt. au 0-RDC
T3
63.09 m²
Sud-Ouest
Jassans-Riottier (01480)
1er trimestre 2028
01 81 80 39 10
Présentation du programme "Programme neuf Jassans-Riottier (01480)"
Nouveau à JASSANS-RIOTTIER ! Soyez parmi les premiers à choisir votre appartement neuf avec espace extérieur et parking ! Un cadre de vie idéal pour les familles ! Cette nouvelle adresse vous invite à vivre dans un environnement paisible, au cœur d’un quartier résidentiel prisé de Jassans-Riottier. Cette résidence à taille humaine se compose de 40 logements, du 2 au 4 pièces, conçus pour répondre aux attentes des familles, des jeunes actifs et des investisseurs. Tous les appartements sont prolongés par un espace extérieur — balcon, terrasse ou jardin privatif — idéal pour profiter des beaux jours dans un cadre verdoyant. Les intérieurs offrent des volumes optimisés, des prestations de qualité, ainsi que des agencements pensés pour votre bien-être : cuisines ouvertes, rangements intégrés et stationnements privatifs pour chaque logement. Nichée entre ville et nature, Jassans-Riottier séduit par sa douceur de vivre et son atmosphère conviviale. Commune dynamique de l’Ain, elle profite de la proximité immédiate de Villefranche-sur-Saône et se situe à seulement 30 km au nord de Lyon, offrant ainsi un équilibre parfait entre vie citadine et tranquillité résidentielle. La ville dispose d’une offre commerciale diversifiée, avec commerces de proximité, supermarchés, services, artisans et marchés hebdomadaires. Vous y trouverez tout le nécessaire pour une vie quotidienne pratique et agréable. La place de Limelette est l’un des pôles commerçants les plus animés de la commune, et de nombreuses enseignes locales facilitent l’accès aux besoins courants. Côté mobilité, Jassans-Riottier est particulièrement bien desservie. La commune est reliée à Villefranche-sur-Saône en quelques minutes seulement grâce au Pont de Frans, et permet un accès rapide à l’autoroute A6 pour rejoindre Lyon ou Mâcon. La gare de Villefranche-sur-Saône, à 5 km, propose des liaisons TER fréquentes vers la métropole lyonnaise. Des lignes de bus (Libellule, Cars de l’Ain) assurent également les déplacements intra-muros et vers les communes voisines, facilitant la vie sans voiture. Profitez de cette opportunité rare d’habiter ou d’investir dans un environnement dynamique et naturel. Que vous soyez à la recherche de votre résidence principale, d’un pied-à-terre ou d’un investissement locatif de qualité, ce projet saura vous séduire par ses prestations et son emplacement stratégique.Contactez dès maintenant un de nos conseillers...
Autres logements T3 du programme "Programme neuf Jassans-Riottier (01480)"
| Disponibilité | Prix | No | Genre | Pièces | Surface | Étage | Disponibilité | Prix | ||
|---|---|---|---|---|---|---|---|---|---|---|
| Voir | Disponible | 262 100€ | A005 | Appt. | T3 | 61.23m2 | 0-RDC | Disponible | 262 100€ | Voir |
| Voir | Disponible | 272 500€ | A101 | Appt. | T3 | 63.01m2 | 1er | Disponible | 272 500€ | Voir |
| Voir | Disponible | 264 200€ | A106 | Appt. | T3 | 61.61m2 | 1er | Disponible | 264 200€ | Voir |
| Voir | Disponible | 277 700€ | A201 | Appt. | T3 | 63.01m2 | 2ème | Disponible | 277 700€ | Voir |
| Voir | Disponible | 269 400€ | A206 | Appt. | T3 | 61.54m2 | 2ème | Disponible | 269 400€ | Voir |
| Voir | Disponible | 282 900€ | A301 | Appt. | T3 | 63.08m2 | 3ème | Disponible | 282 900€ | Voir |
| Voir | Disponible | 276 700€ | A303 | Appt. | T3 | 59.83m2 | 3ème | Disponible | 276 700€ | Voir |
| Voir | Disponible | 274 600€ | A305 | Appt. | T3 | 61.61m2 | 3ème | Disponible | 274 600€ | Voir |
| Voir | Disponible | 271 500€ | B002 | Appt. | T3 | 60.51m2 | 0-RDC | Disponible | 271 500€ | Voir |
| Voir | Disponible | 266 300€ | B103 | Appt. | T3 | 59.32m2 | 1er | Disponible | 266 300€ | Voir |
| Voir | Disponible | 233 000€ | B104 | Appt. | T3 | 57.89m2 | 1er | Disponible | 233 000€ | Voir |
| Voir | Disponible | 271 500€ | B203 | Appt. | T3 | 59.32m2 | 2ème | Disponible | 271 500€ | Voir |
| Voir | Disponible | 260 000€ | B204 | Appt. | T3 | 57.89m2 | 2ème | Disponible | 260 000€ | Voir |
| Voir | Disponible | 292 300€ | B302 | Appt. | T3 | 62.68m2 | 3ème | Disponible | 292 300€ | Voir |
| Voir | Disponible | 265 200€ | B303 | Appt. | T3 | 57.92m2 | 3ème | Disponible | 265 200€ | Voir |